UBV Immobilien Treuhand AG
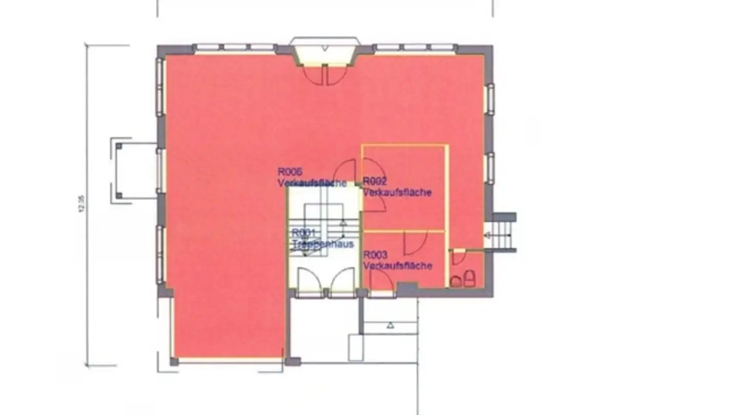
1 stanze • 66 m² • Spazio ufficio
Weierstrasse 1, 8712 Stäfa
Posizione centrale a Stäfa
Ufficio o studio versatile
Servizi igienici condivisi
CHF 1'560
CHF 284 m² / year

UBV Immobilien Treuhand AG
Spazio ufficio in affitto
Weierstrasse 1, 8712 Stäfa
Ufficio / Spazio espositivo a Stäfa
1 stanze • 66 m² • Spazio ufficio
Posizione centrale a Stäfa
Ufficio o studio versatile
Servizi igienici condivisi
CHF 1'560
CHF 284 m² / year