Terreno edificabile commerciale in vendita - 6989 Purasca
Perché amerai questa proprietà
Zona verde tranquilla
Progetto approvato incluso
Vicino ai mezzi pubblici
Organizza una visita
Prenota una visita oggi!
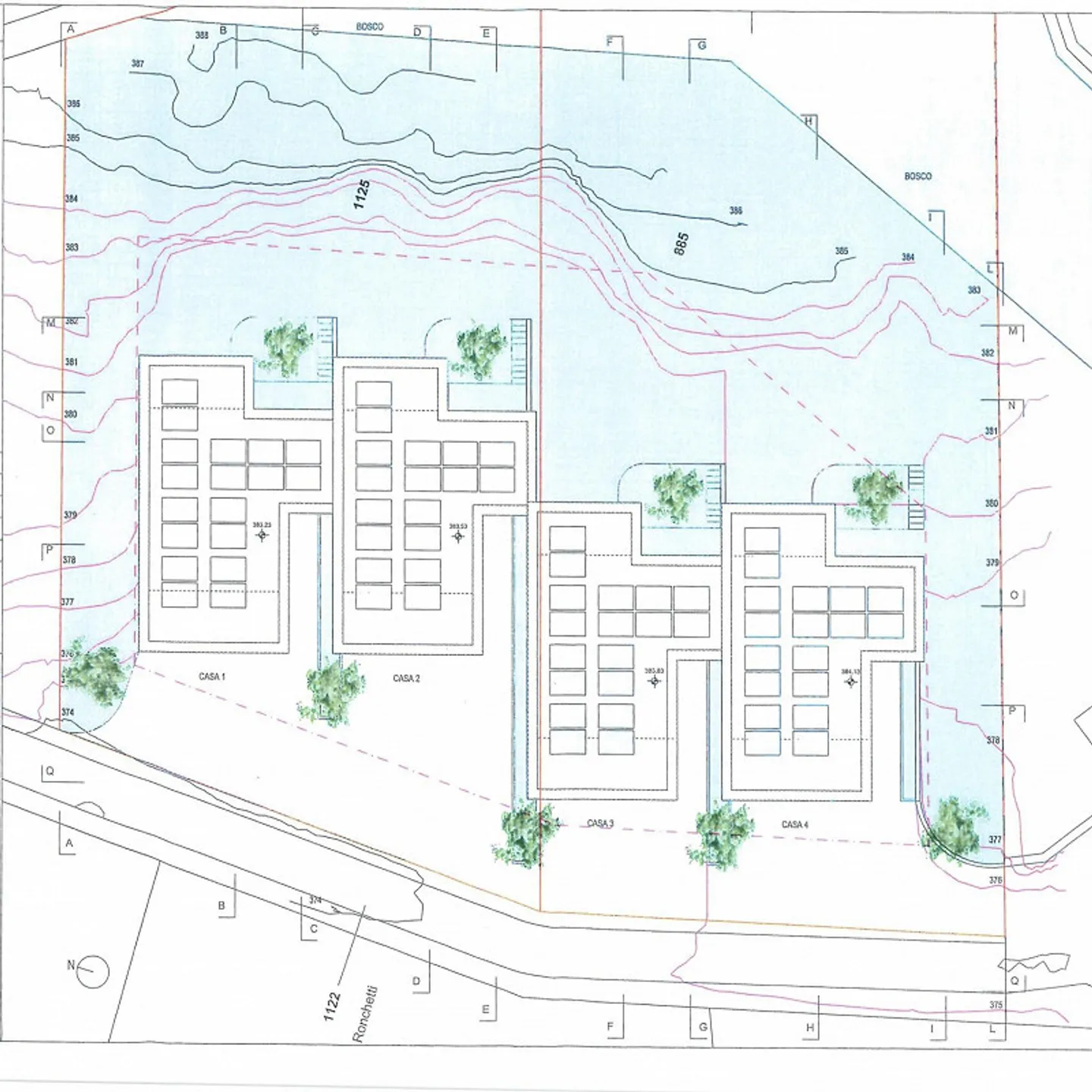
BELLISSIMO TERRENO CON LICENZA APPROVATA A PURASCA
Bellissimo terreno di ca 2144 mq edificabile con licenza approvata R2 in una bellissima zona tranquilla e nel verde adatto per la costruzione di 4 case unifamiliari su un massimo di 2 livelli con un Totale di ca. 683 mq di SUL, situato in un bellissimo contesto a Purasca con vista aperta e nel verde. Il progetto prevede anche la realizzazione di posteggi privati coperti.
Indice di Sfruttamento: 0,4;
Indice di Occupazione: 35%;
Distanza dal Confine: 3.5 m;
Altezza Max : 9.4 m;
Totale SUL: ca. 683,...
Dettagli immobile
- Disponibile dal
- Su accordo
- Superficie terreno
- 2144 m²



