1 / 27

Immobile in affitto - Via Massago, 6977 Ruvigliana

8.5 rooms
CHF 8’000’000.-
-

Perché amerai questa proprietà

Terrazza panoramica di 126 m²

Piscina esterna riscaldata

Sistema domotico avanzato

Organizza una visita

Prenota una visita oggi!

P&M Real Estate
Questa descrizione è stata tradotta automaticamente da Inglese.

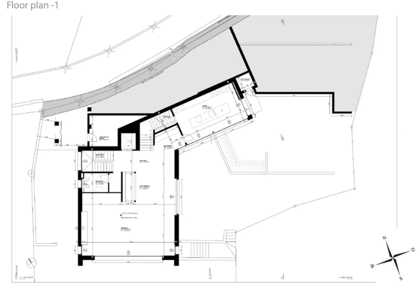
Villa prestigiosa a lugano ruvigliana con eccitante vista sul lago

VILLA PRESTIGIOSA CON ECCITANTE VISTA SUL LAGO

La prestigiosa villa è situata nella bella località di Ruvigliana in una posizione dominante e riservata, la cui orientazione sud-est garantisce un'eccellente esposizione al sole per tutto il giorno.

La grande terrazza di 126 m2 e il giardino panoramico adiacente di 567 m2 permettono emozionanti viste sul Golfo di Lugano, sul Monte San Salvatore, sulla città stessa e su tutta la valle del Ceresio.

La vista sul lago è tra le più suggestive e affascinant...

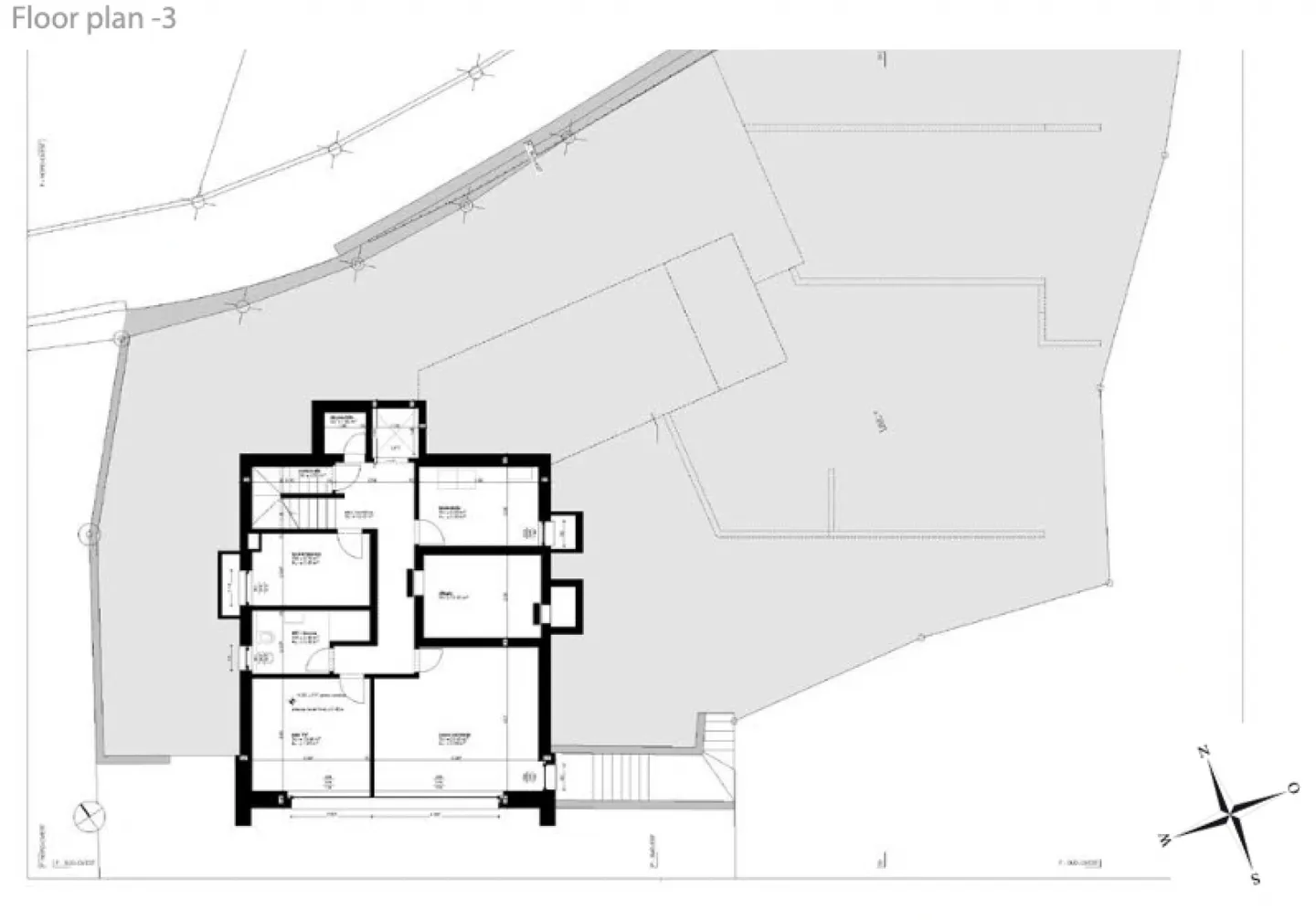
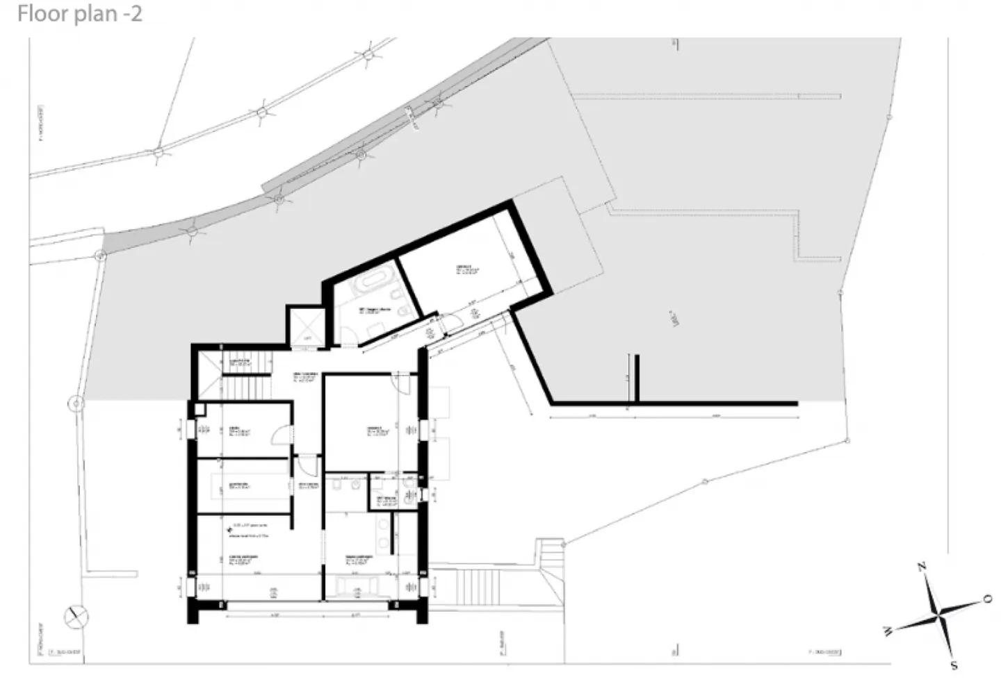
Dettagli immobile

Disponibile dal
Su accordo
Stanze
8.5
Bagni
5

Caratteristiche

Piscina
Vista libera
Ascensore
Camino
Lavatrice
Asciugatrice
Adatto ai bambini
Animali ammessi

Agenzia

P&M Real Estate
Indirizzo:Corso Pestalozzi, 6900, Lugano

Località

Via Massago, 6977 Ruvigliana

Fonti