Ristorante in vendita - 6672 Gordevio
Perché amerai questa proprietà
Terrazza panoramica con grill
Accogliente angolo bar
Fascino storico ristrutturato
Organizza una visita
Prenota una visita con Steiger oggi!
Gordevio - bellissimo grotto ticinese
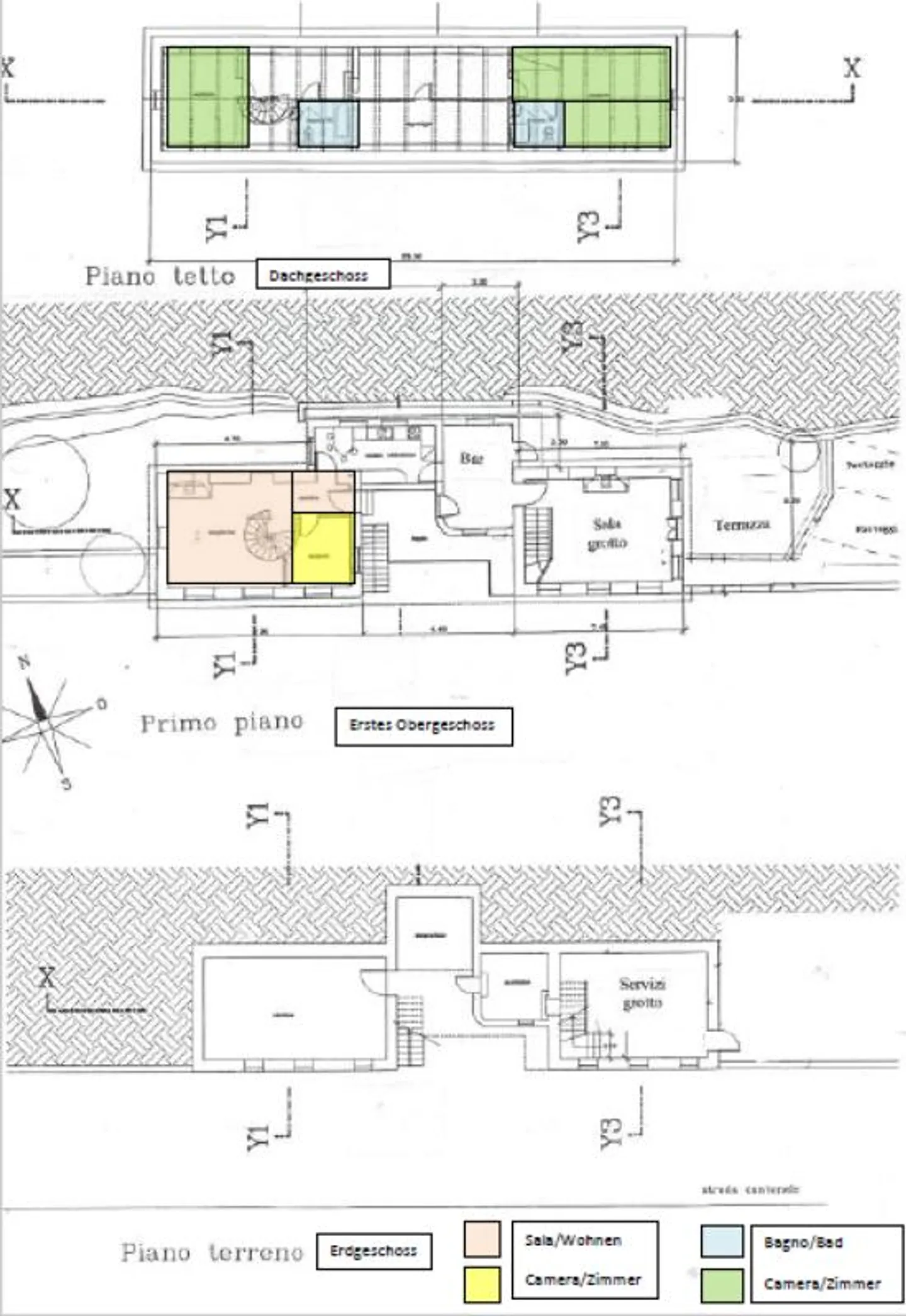
L'immobile originariamente costruito tra il 1850 e il 1900 è stato interamente ristrutturato nel 1992 mantenendo il suo fascino. I pavimenti in pietra, il camino, le travi in legno a vista e il tetto in piode rendono unica questa meravigliosa proprietà.
Il grotto si trova in una posizione soleggiata e strategica, sulla strada principale tra Gordevio e Maggia (zona Ronchini), a soli 9 km da Locarno.
Il ristorante gode di grande fama nella zona ed è inoltre molto conosciuto e apprezzato dai turisti ...
Dettagli immobile
- Disponibile dal
- Su accordo
- Anno di costruzione
- 1850
- Anno di ristrutturazione
- 1992
- Superficie terreno
- 5000 m²




