1 / 12

Ristorante in affitto - 6672 Gordevio

5000 m² Plot • Piano terra
CHF 845’000.-
CHF 169 m²

Perché amerai questa proprietà

Terrazza panoramica con grill

Bar accogliente e camino

Cucina completamente attrezzata

Organizza una visita

Prenota una visita con Steiger oggi!

Steiger
Immobiliare SL SA

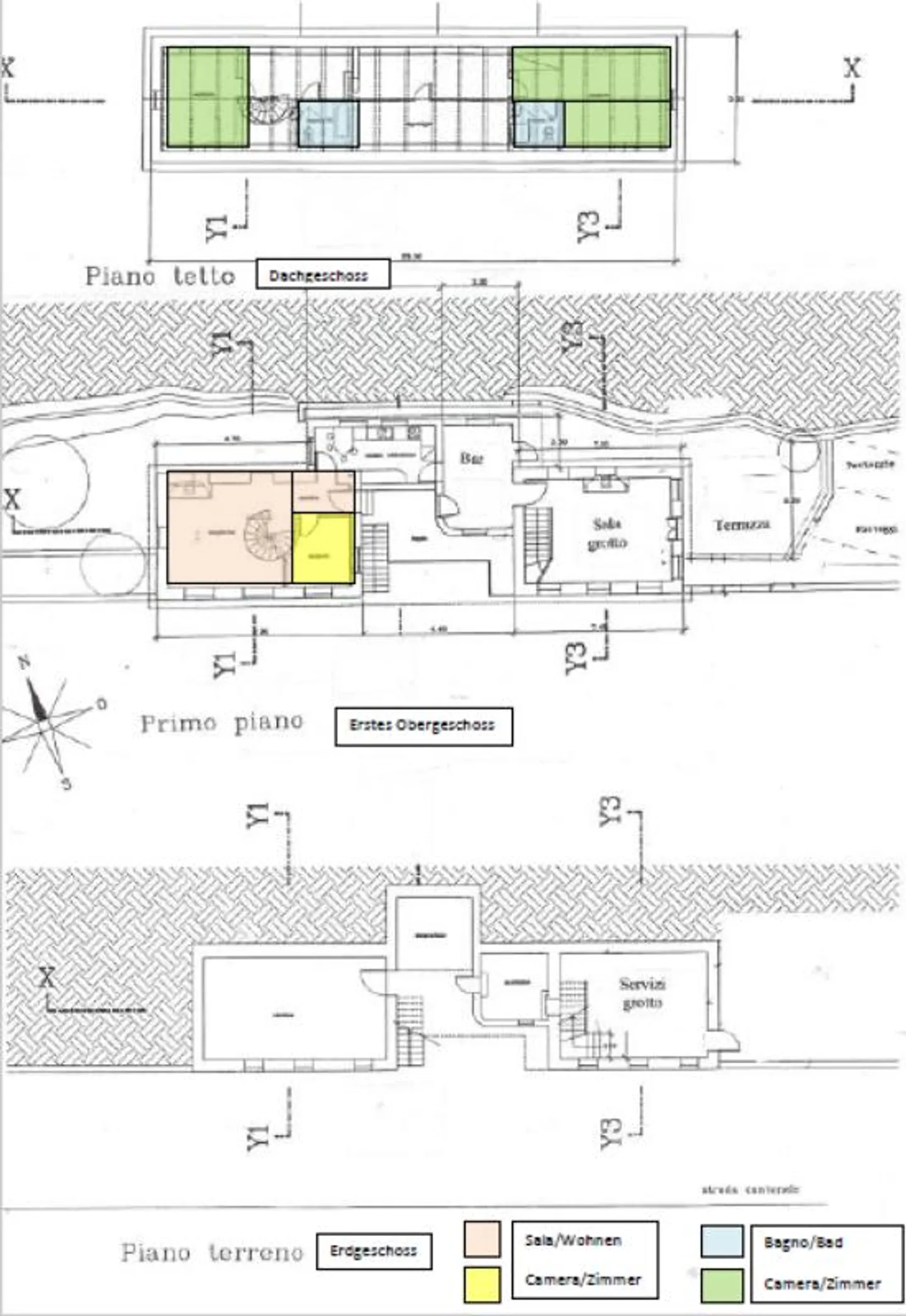
Gordevio - bellissimo grotto ticinese

L'immobile originariamente costruito tra il 1850 e il 1900 è stato interamente ristrutturato nel 1992 mantenendo il suo fascino. I pavimenti in pietra, il camino, le travi in legno a vista e il tetto in piode rendono unica questa meravigliosa proprietà.

Il grotto si trova in una posizione soleggiata e strategica, sulla strada principale tra Gordevio e Maggia (zona Ronchini), a soli 9 km da Locarno.

Il ristorante gode di grande fama nella zona ed è inoltre molto conosciuto e apprezzato dai turisti ...

Dettagli immobile

Disponibile dal
Su accordo
Anno di costruzione
1850
Anno di ristrutturazione
1992
Superficie terreno
5000

Caratteristiche

Parcheggio
Vista libera
Tv via cavo

Agenzia

Immobiliare SL SA
Immobiliare SL SA
Indirizzo:Muralto, Piazza Stazione, 6600
(54 reviews)
Ref: V201126SL - KW38.81afeb3d-8ee2-11f0-9d93-069ae14c7a06

Località

6672 Gordevio

Fonti