Edificio residenziale in vendita - 8499 Sternenberg
Perché amerai questa proprietà
Posizione idilliaca con piscina
Studio d'arte e sale seminari
Ampia terrazza per incontri
Organizza una visita
Prenota una visita con Christian oggi!
Casa multigenerazionale e seminario in una posizione idilliaca!
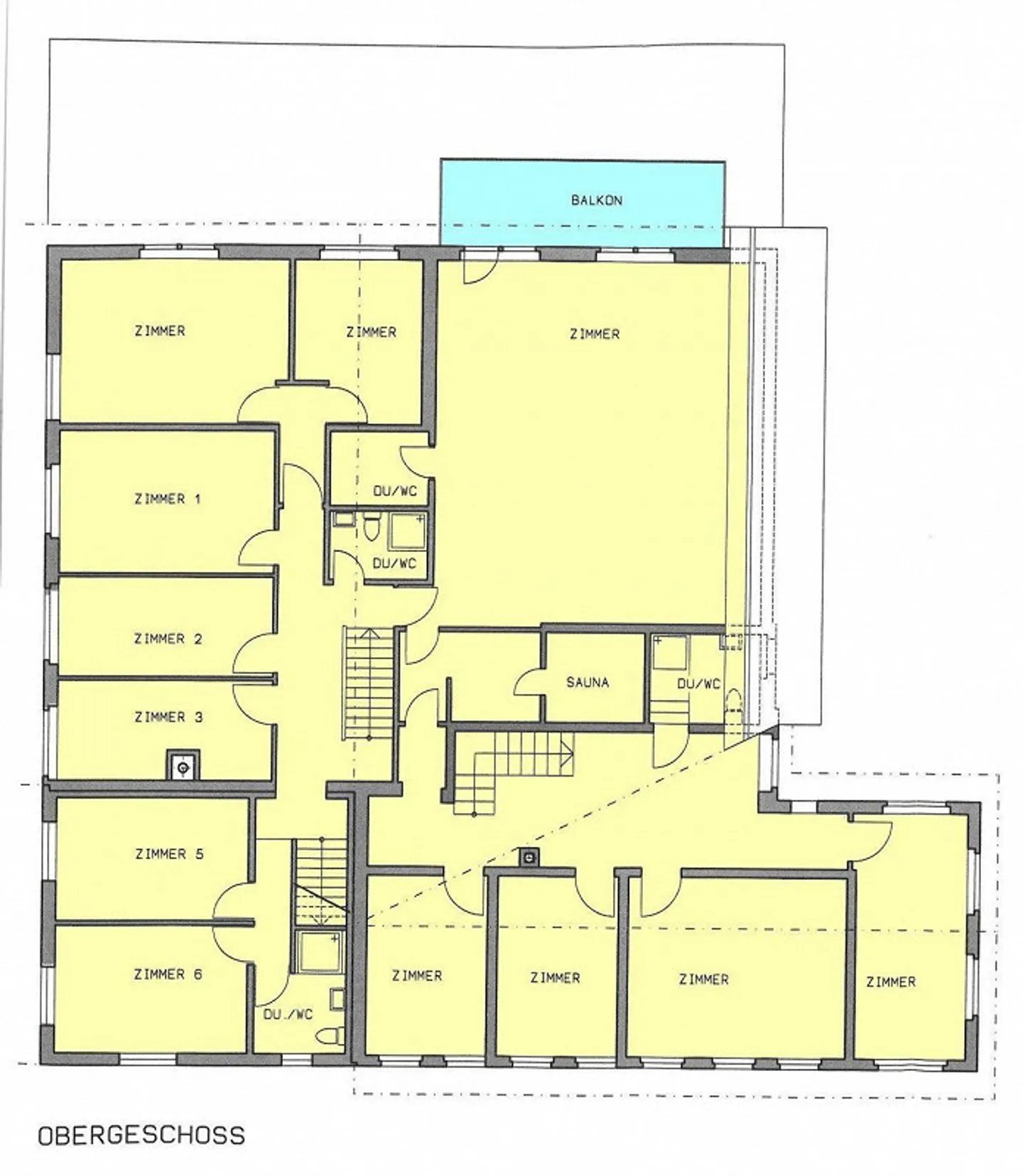
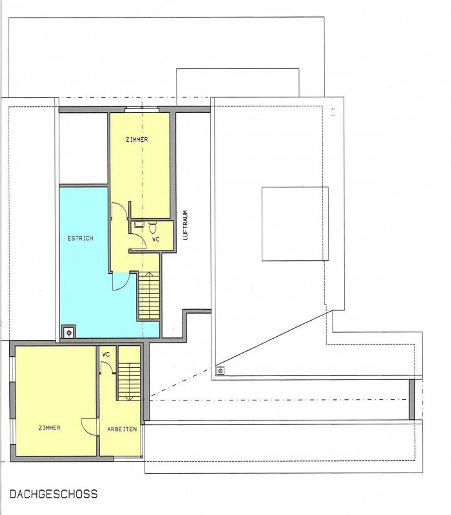
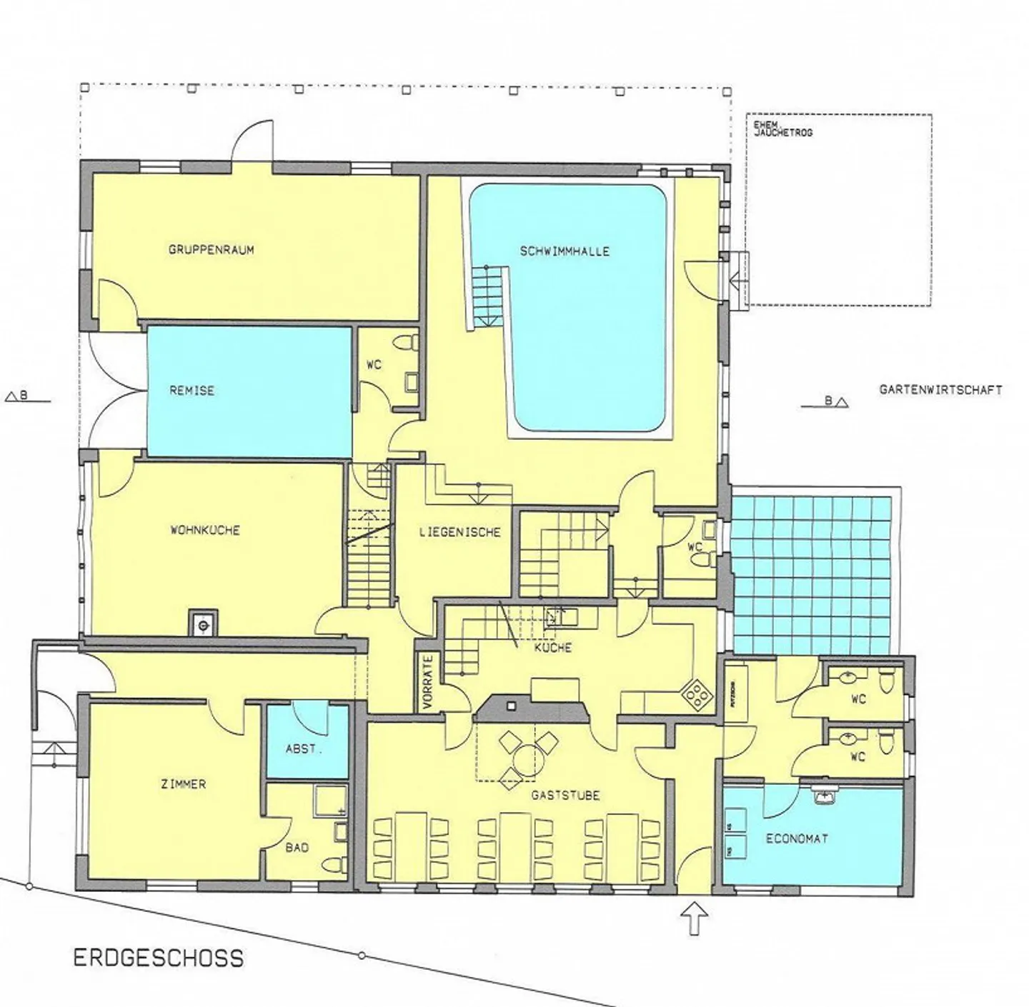
Nella parte settentrionale di Sternenberg, comune di Bauma, in una posizione estremamente idilliaca, tranquilla e soleggiata, si trova la casa residenziale e di gruppo "Alter Steinshof" con un totale di 14 camere da letto e 3 sale seminariali, uno studio d'arte, oltre a una piscina e una sauna. L'edificio principale, originariamente costruito nel 1865, con ristorante e appartamento sovrastante, è stato notevolmente ampliato negli anni '70 e nel 1998. Oggi sono disponibili circa 170 m² nell'edifi...
Dettagli immobile
- Disponibile dal
- Su accordo
- Stanze
- 14
- Anno di costruzione
- 1865
- Anno di ristrutturazione
- 2017
- Superficie terreno
- 1373 m²




