Edificio ad uso misto in vendita - Grand-Pont 8, 2087 Cornaux NE
Perché amerai questa proprietà
Layout flessibili per aziende
Design moderno ed energetico
Ottima accessibilità e parcheggio
Organizza una visita
Prenota una visita con Cristina oggi!
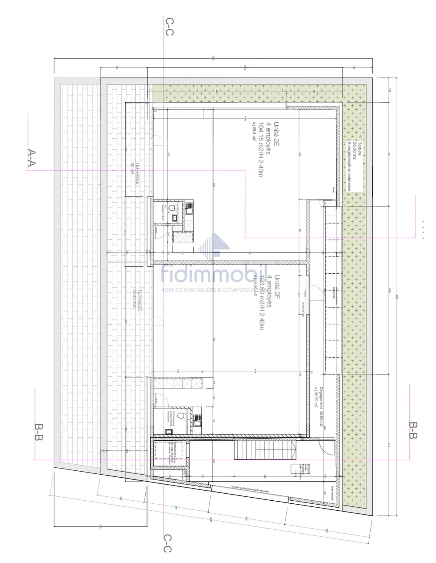
Spazi Commerciali Modulari, Uffici e Aree Artigianali
Located in Cornaux, at Grand-Pont 8, this new real estate project offers commercial, administrative, and storage spaces designed to meet the current needs of craft, service, and commercial businesses.
Situated in an economic activity zone, the building benefits from excellent accessibility, modern design, and great flexibility in layout.
**A contemporary and functional PROJECT
** Designed by the Prost & Prost Sàrl office, the building stands out for its sober and contemporary architecture, in...
Dettagli immobile
- Disponibile dal
- Su accordo



