Edificio ad uso misto in vendita - 6833 Vacallo
Perché amerai questa proprietà
Configurazioni spaziali flessibili
Aree ad alta capacità
Caratteristiche di design energetico
Organizza una visita
Prenota una visita con Stabile oggi!
Area Commerciale-Industriale-Artigianale a Vacallo
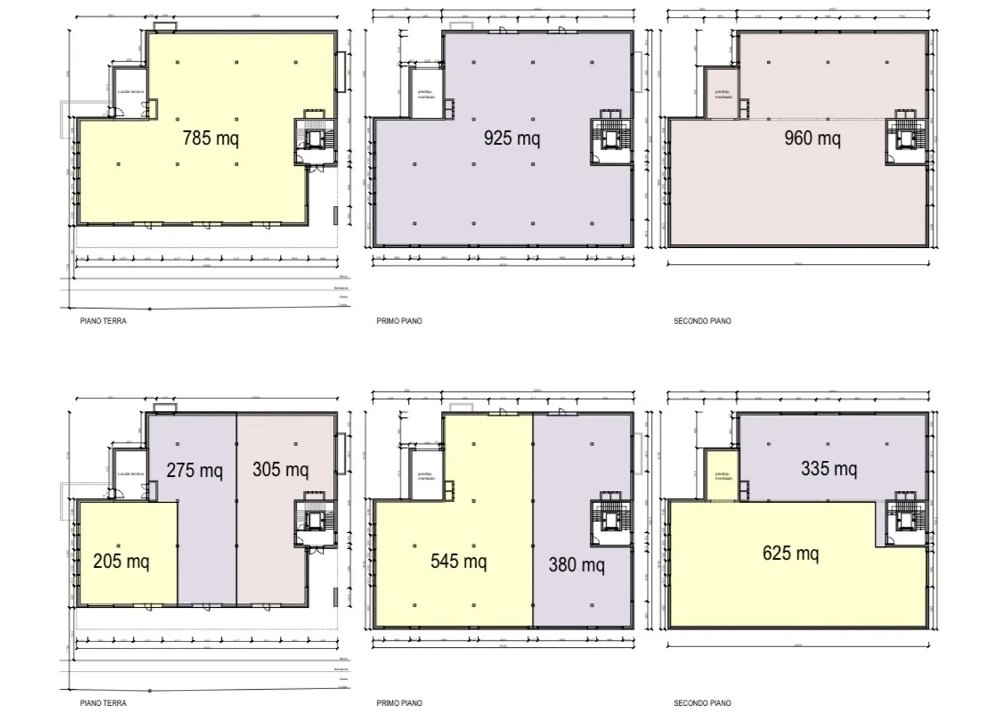
Nel comune di Vacallo, è in costruzione un moderno edificio a uso commerciale, industriale e artigianale, che si estende su tre piani sopraelevati e copre una superficie totale di 2.670 m².
La struttura, interamente in calcestruzzo armato, offre ampi spazi versatili e altamente portanti, ideali per attività di produzione, logistica e stoccaggio.
È possibile acquistare l'intero edificio o scegliere singoli blocchi a partire da 205 m², combinare più stanze, acquistare un intero piano o più piani, ...
Dettagli immobile
- Disponibile dal
- 02.02.2026
- Stanze
- 1
- Anno di costruzione
- 2025
- Superficie abitabile
- 205 m²
- Superficie utilizzabile
- 205 m²



