Edificio ad uso misto in vendita - 6830 Chiasso
Perché amerai questa proprietà
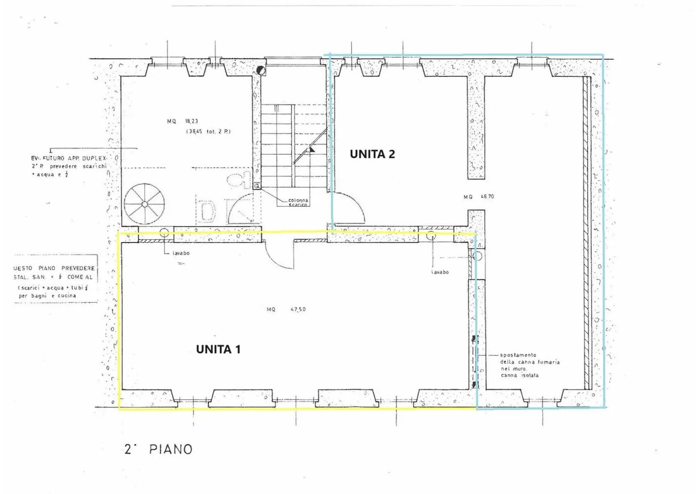
Progetto di ristrutturazione approvato
Conversione residenziale flessibile
Ideale opportunità d'investimento
Organizza una visita
Prenota una visita oggi!
Ufficio a pochi passi dal centro di chiasso
Proponiamo in vendita in posizione centrale e ben servita, un'unità da ristrutturare situata al secondo ed ultimo piano (senza ascensore) di uno stabile composto da sole 7 unità.
L'immobile dispone di un ampio locale di circa 48 m², attualmente adibito ad ufficio può essere facilmente trasformato, tramite un intervento di ristrutturazione ed il cambio di destinazione d'uso, in un trilocale residenziale funzionale e moderno. Progetto di ristrutturazione già approvato in comune.
A disposizione local...
Dettagli immobile
- Disponibile dal
- Su accordo



