Edificio residenziale in vendita - Frutigenstrasse 52, 3604 Thun
Perché amerai questa proprietà
Potenziale Airbnb
Posizione centrale
Opzioni di utilizzo flessibili
Organizza una visita
Prenota una visita con Larissa oggi!
Edificio residenziale e commerciale ad alto rendimento a Thun - Posizione centrale con potenziale Airbnb
La proprietà situata in Frutigenstrasse 52 a 3604 Thun combina abitare e lavorare in una posizione centrale e ben frequentata. L'edificio residenziale e commerciale, costruito nel 1900, si trova nella zona residenziale/lavorativa W/A3. La proprietà si presenta in uno stato solido e funzionale.
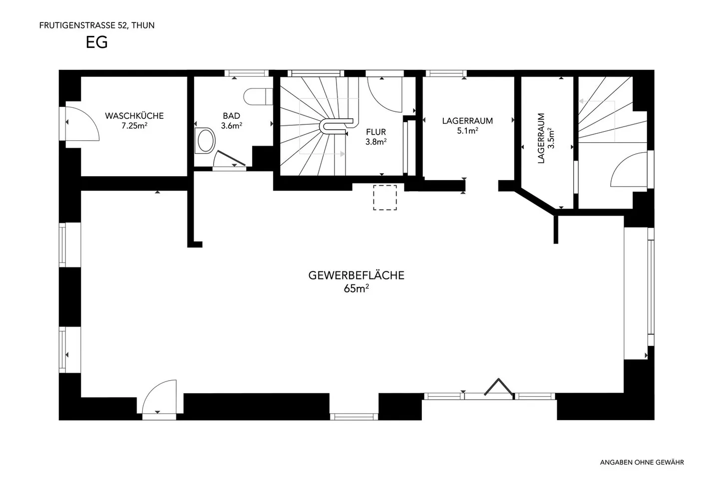
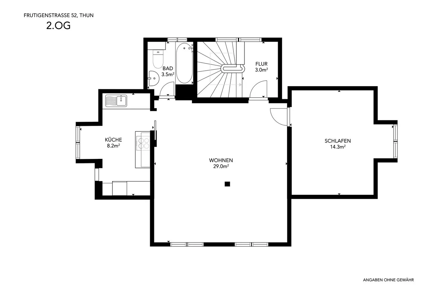
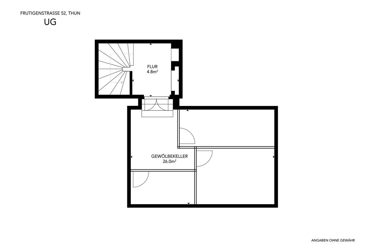
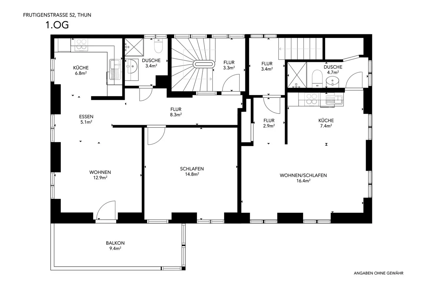
La proprietà ha una superficie abitabile netta di circa 211m² e una superficie utile totale di circa 278m². Il programma delle stanze comprende uno spazio commerciale al piano terra (circa 74m²), uno studio...
Dettagli immobile
- Disponibile dal
- Su accordo
- Stanze
- 6
- Anno di costruzione
- 1900
- Superficie abitabile
- 211 m²
- Superficie utilizzabile
- 278 m²
- Superficie terreno
- 340 m²
- Volume dell'edificio
- 1197 m³




