Edificio residenziale in vendita - Rötlistrasse 36c, 8717 Benken SG
Perché amerai questa proprietà
Zona residenziale tranquilla
Vicino ai mezzi pubblici
Alto potenziale di sviluppo
Organizza una visita
Prenota una visita con Sidler oggi!
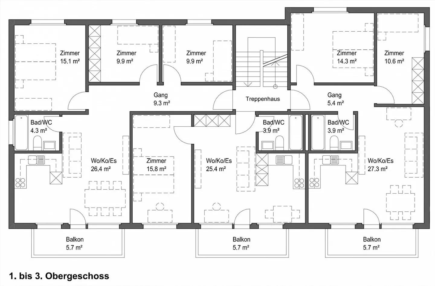
Casa multifamiliare ad alto rendimento in una posizione tranquilla
Il comune di Benken nel cantone di San Gallo è situato in una posizione comoda nella Linthebene tra i cantoni di San Gallo, Glarona e Sciaffusa. Grazie alla stazione ferroviaria e all'accesso all'autostrada nelle vicinanze, i centri regionali di Uznach e Rapperswil sono raggiungibili in breve tempo. La città di Zurigo è a meno di un'ora di auto. I dintorni offrono un'alta qualità della vita con una varietà di opportunità per il tempo libero e il relax vicino a laghi e montagne. La proprietà stes...
Dettagli immobile
- Disponibile dal
- Su accordo
- Anno di costruzione
- 1973
- Superficie terreno
- 1303 m²



