Edificio ad uso misto in vendita - 1584 Villars-le-Grand
Perché amerai questa proprietà
Reddito da affitto immediato
Appartamenti luminosi e spaziosi
Posti auto disponibili in loco
Organizza una visita
Prenota una visita con Laurence oggi!
Un'opportunità per un primo investimento immobiliare o un posizionamento, idealmente situata a circa 30 minuti da Friburgo, Berna e Neuchâtel.
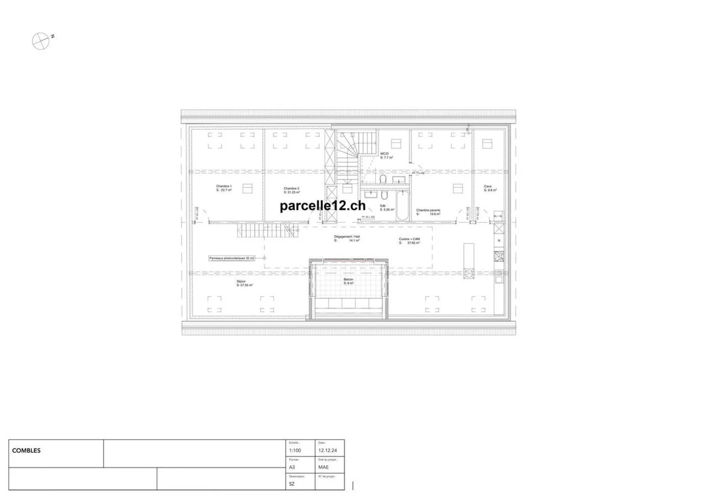
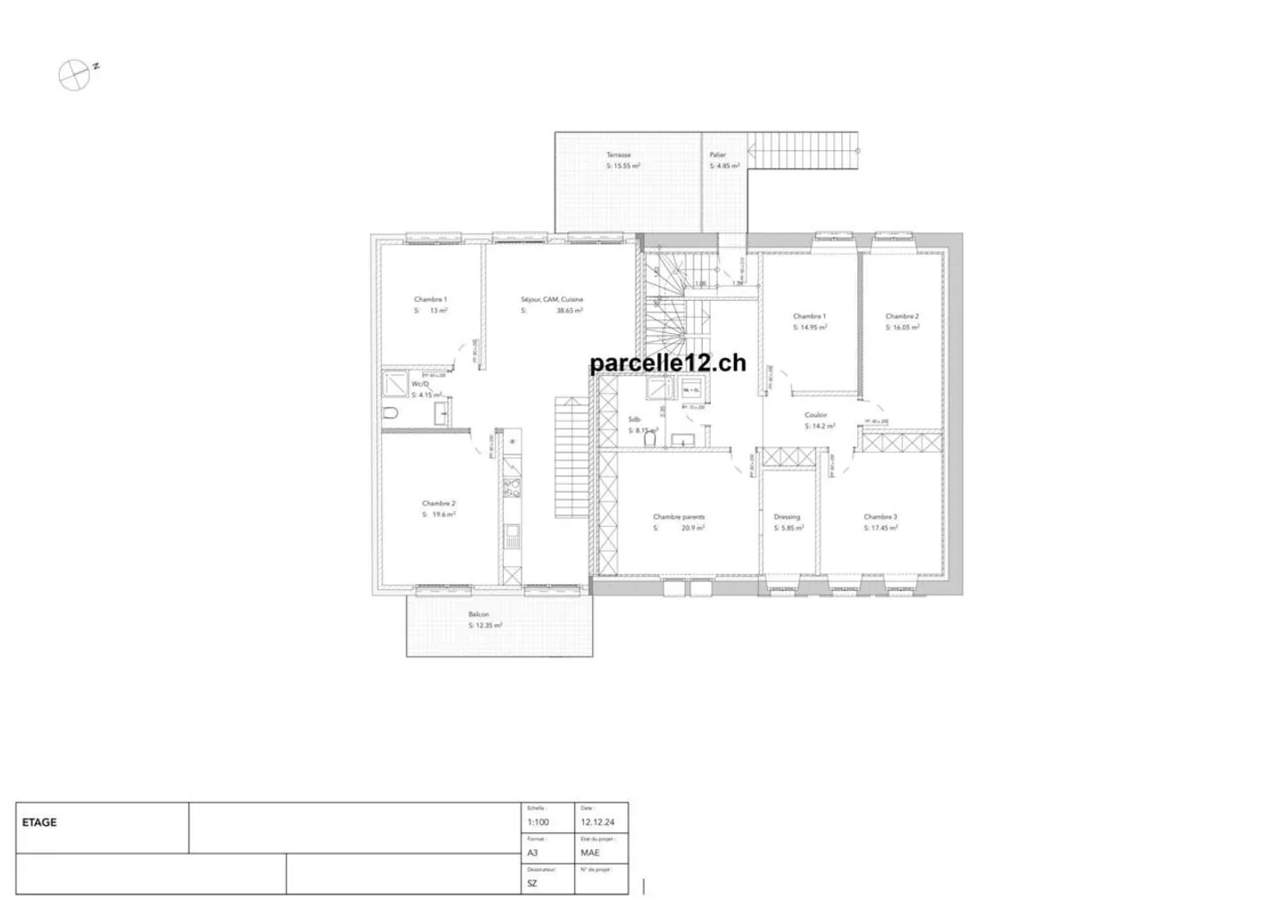
Lotto 1 - duplex 6.5 stanze con accesso diretto a uno studio indipendente
Lotto 2 - duplex 5.5 stanze con garage
Lotto 3 - attico 5.5 stanze
Tutti gli appartamenti sono affittati. Il reddito locativo annuale ammonta a CHF 87'600.-, offrendo un rendimento immediato con un edificio che non richiede lavori nei prossimi anni.
Ogni unità beneficia di abbondant...
Dettagli immobile
- Disponibile dal
- Su accordo
- Superficie terreno
- 873 m²





