Edificio residenziale in vendita - Lindenstrasse 15, 9602 Bazenheid
Perché amerai questa proprietà
Vista panoramica mozzafiato
Design moderno e di alta qualità
Personalizza gli interni a tuo piacere
Organizza una visita
Prenota una visita con Stadler oggi!
Inizio dei lavori - attico di 4,5 stanze con vista meravigliosa
La tua casa dei sogni in Lindenstrasse: condomini personalizzabili a Bazenheid
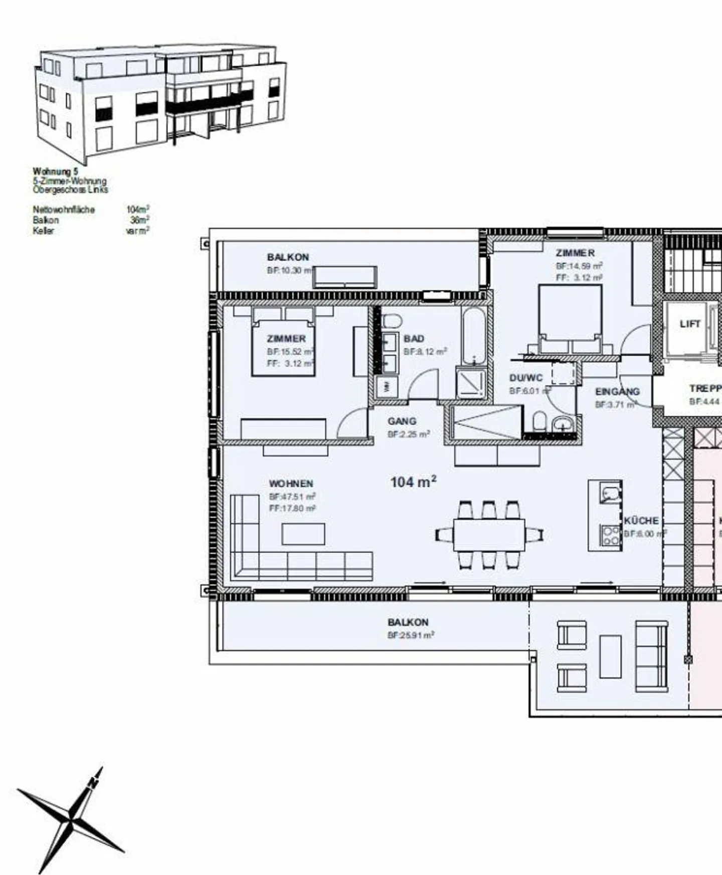
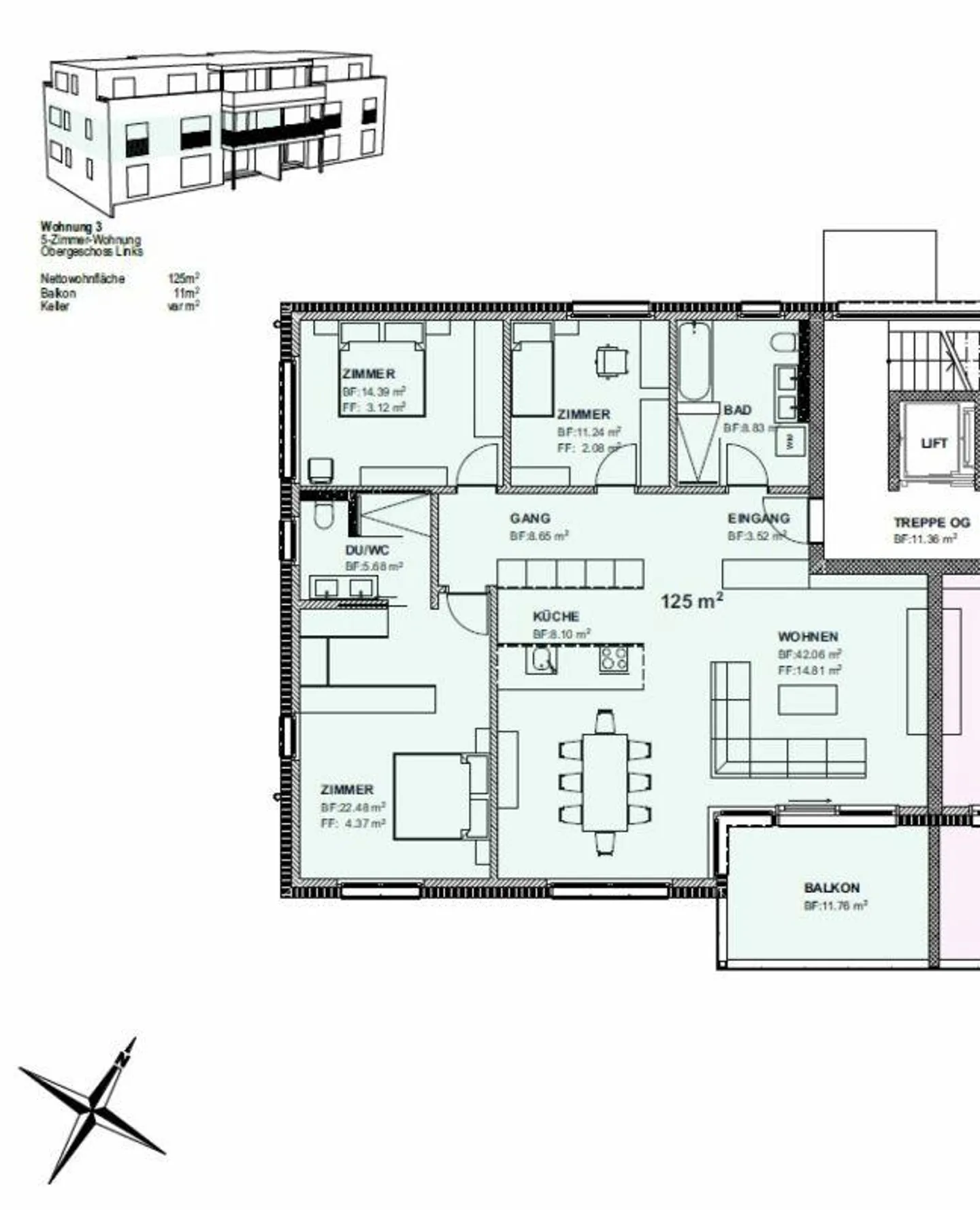
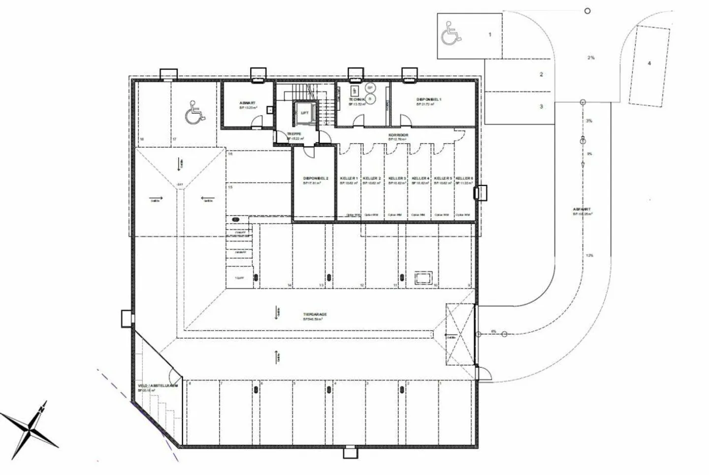
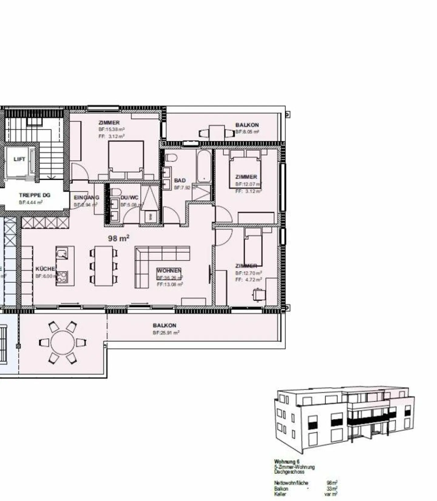
A Bazenheid sta nascendo un nuovo progetto di costruzione moderno in Lindenstrasse. Questo progetto attraente comprende sei condomini di alta qualità, caratterizzati da un'architettura ben pensata e da un'ottima dotazione. Gli appartamenti offrono una disposizione flessibile degli spazi con dimensioni che vanno da 3,5 a 4,5 stanze, ideali per coppie, piccole famiglie o come investimento. Ogni unità è dotata delle più m...
Dettagli immobile
- Disponibile dal
- Su accordo
- Anno di costruzione
- 2025




