1 / 5

Negozio in vendita - Strada Regina, 6982 Agno

1 stanze • Piano terra
CHF 1’421’620
-

Perché amerai questa proprietà

Vetrine ad alta visibilità

Layout open space flessibile

Accesso ai mezzi pubblici

Organizza una visita

Prenota una visita oggi!

Fiduciaria Berion SA

Spazio commerciale zona forte passaggio - nuova costruzione

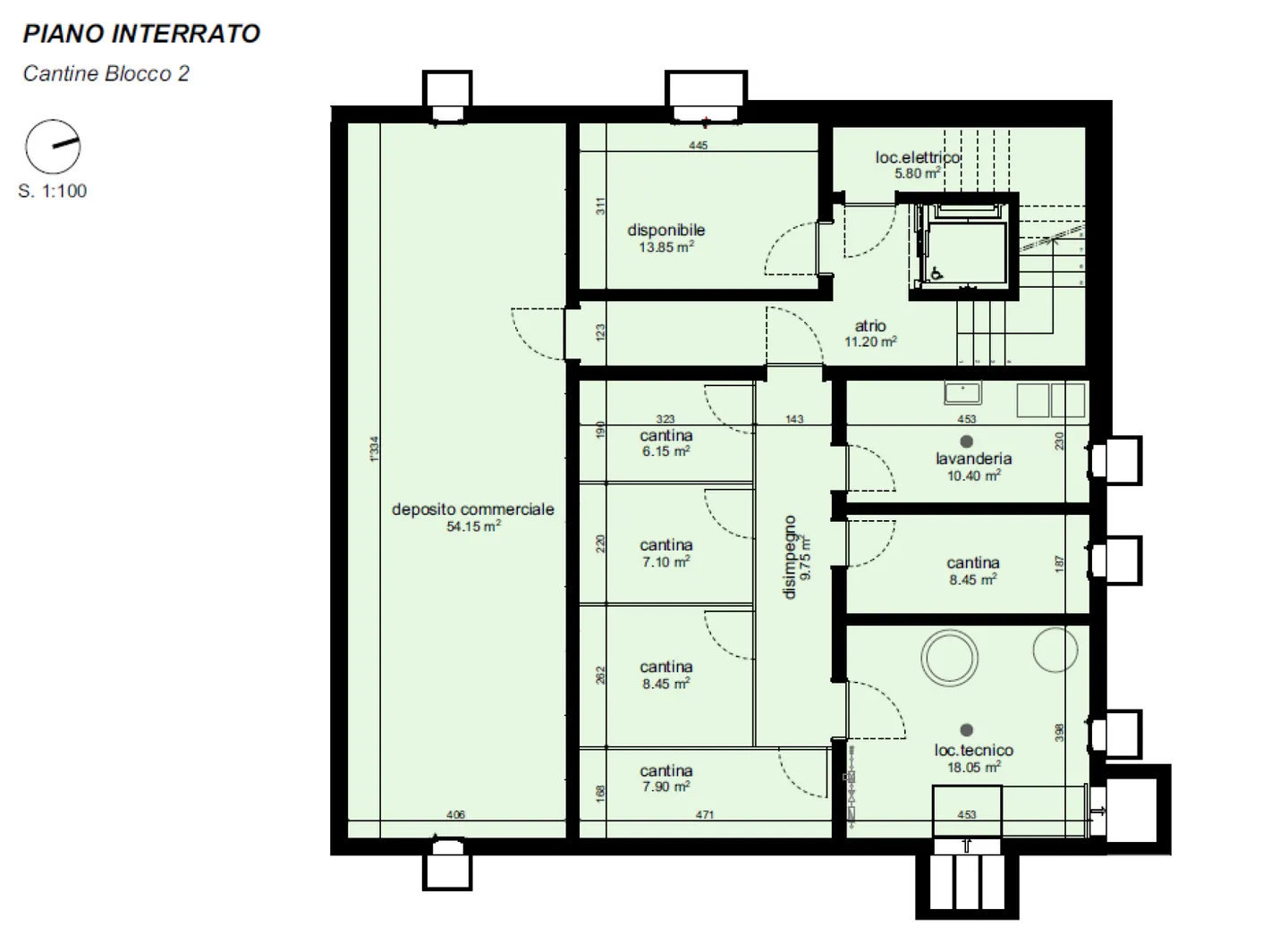
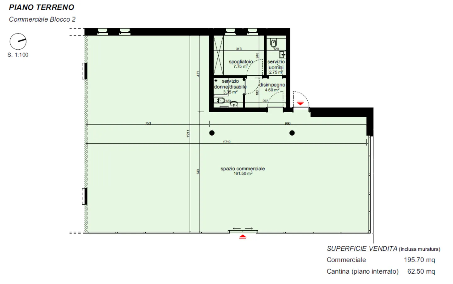
Presso la nuova Residenza Vitulla, a Serocca d'Agno, in prossimità di mezzi pubblici e dei principali servizi, si vende questo spazio commerciale di 195.70mq con cantina/deposito di 62.50mq, al piano interrato.

Ampie vetrine con grande visibilità su strada di forte passaggio, parcheggi esterni, spazio da arredare come open space o facilmente suddivisibile, questa soluzione si adatta benissimo ad un negozio oppure uno showroom, una galleria d'arte o anche ideale per uffici.

Posteggi esterni scopert...

Dettagli immobile

Disponibile dal
Su accordo
Stanze
1
Bagni
2
Anno di costruzione
2025

Caratteristiche

Parcheggio
Ascensore
Nuova costruzione
Accessibile ai disabili

Agenzia

Fiduciaria Berion SA
Indirizzo:Via Giardino, 6517, Arbedo
Ref: 406/MF
Online da
06/06/2025
5 mesi fa

Località

Strada Regina, 6982 Agno

Fonti