Spazio ufficio in vendita - Rue Jacques-René Fiechter, 2613 Villeret
Perché amerai questa proprietà
Ideale per home office
Zona professionale tranquilla
Finiture moderne incluse
Organizza una visita
Prenota una visita con Claude oggi!
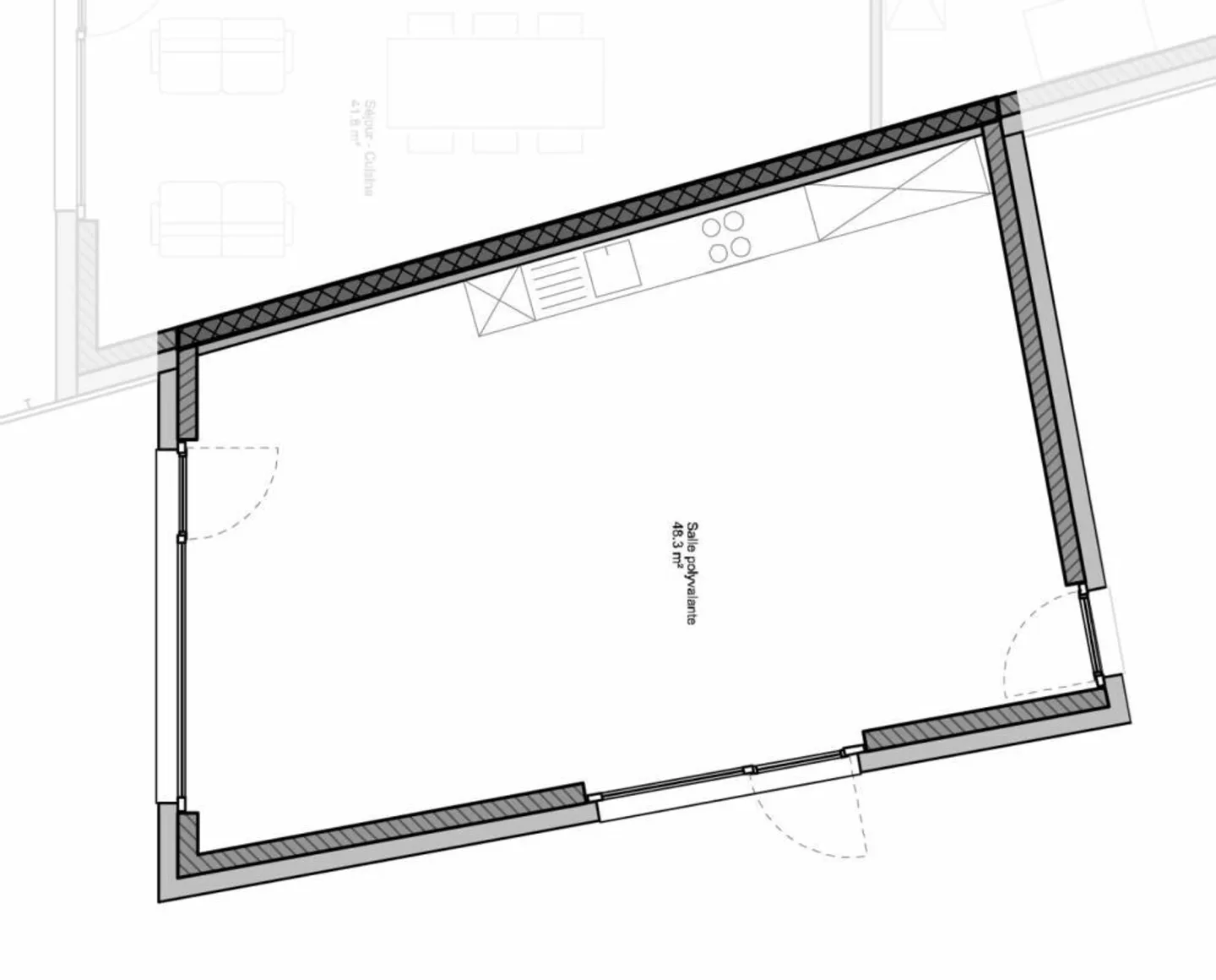
Amministrativo/Ufficio di 48 m2 a Villeret
REALIZZAZIONE DI 18 UNITA' ABITATIVE + 1 spazio professionale a Villeret Non esitate a contattarci per discutere insieme del vostro progetto per questo luogo! Privilegiamo le persone desiderose di prendere un appartamento con questo spazio che potrebbe ad esempio essere utilizzato come "Home Office". In ogni caso, l'uso previsto non deve disturbare il condominio e non deve generare traffico veicolare. Assegnazione possibile: attività del settore terziario. Fermo restando eventuali modifiche, que...
Dettagli immobile
- Disponibile dal
- 01.03.2026
- Anno di costruzione
- 2025
- Superficie abitabile
- 48 m²
- Superficie utilizzabile
- 48 m²



