Commerciale in vendita - Avenue Des Bains, 1400 Yverdon-les-Bains
Perché amerai questa proprietà
Trasformazione di un mulino storico
Interni personalizzabili
Design energetico efficiente
Organizza una visita
Prenota una visita oggi!
Nuova promozione: "silo renaissance"
Bernard Nicod SA è lieta di presentarvi in esclusiva il suo progetto << Silo Renaissance >> nella charmante città di Yverdon-les-Bains.
Figura iconica della città di Yverdon-les-Bains, il vecchio Mulino, rinomato per le sue farine artigianali, subirà una trasformazione spettacolare per dare vita al nuovo progetto Silo Renaissance, che unisce abitazioni e commercio. Nel rispetto della storia del Mulino di Yverdon, i volumi originali sono stati preservati, mentre il Silo è stato ripens...
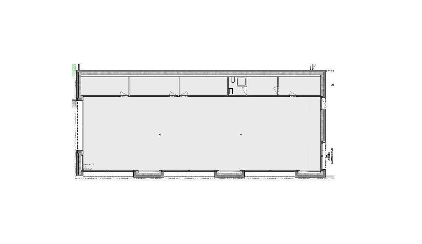
Dettagli immobile
- Disponibile dal
- Su accordo
- Superficie abitabile
- 77 m²
- Superficie utilizzabile
- 77 m²



