Spazio ufficio in vendita - Tüfebrunne 4b, 5306 Tegerfelden
Perché amerai questa proprietà
Progettazione degli spazi flessibile
Alta isolamento termico
Sistema di ventilazione comfort
Organizza una visita
Prenota una visita con Architekturbüro oggi!
Parco commerciale TÜFEBRUNNE, Ideale per mostre, uffici, studi
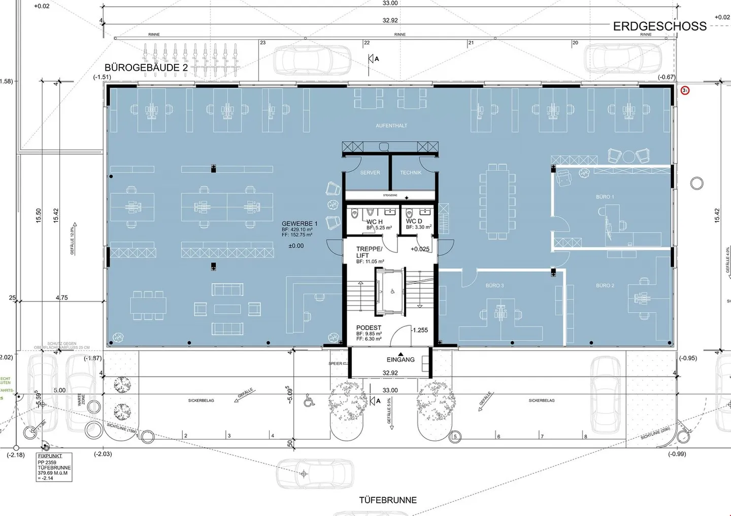
Nel villaggio vinicolo di Tegerfelden e quindi nel cuore del Zurzibiet, sta nascendo in una posizione ideale il Gewerbepark Tüfebrunne con due edifici commerciali rappresentativi e un garage sotterraneo tra di essi.
Gli edifici cubici impressionano per la loro architettura lineare e un concetto di spazio confortevole e flessibile. Determina tu stesso la disposizione e la dimensione degli spazi commerciali, perfettamente adattati alle tue esigenze e necessità.
Edificio Uffici 2 (Tüfebrunne 4b)
Nell'...
Dettagli immobile
- Disponibile dal
- 31.12.2025
- Anno di costruzione
- 2024
- Superficie abitabile
- 201 m²
- Superficie utilizzabile
- 201 m²



