Negozio in vendita - 4800 Zofingen
Perché amerai questa proprietà
Posizione centrale nella città vecchia
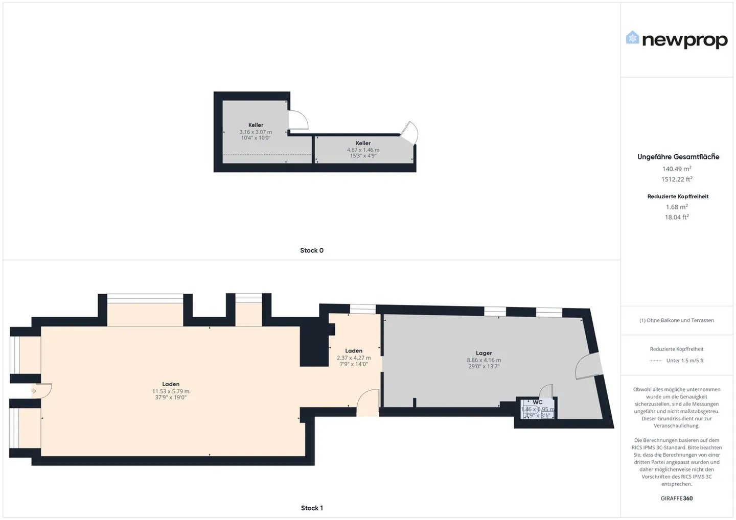
Area vendita luminosa
Ampio magazzino e cantina
Organizza una visita
Prenota una visita con Markus oggi!
Spazio commerciale nel cuore della città vecchia
Zofingen
Zofingen (CAP 4800) si trova nel distretto omonimo nel cantone di Argovia e combina fascino storico con un'infrastruttura moderna. La pittoresca città vecchia, l'offerta culturale diversificata e le eccellenti connessioni di trasporto rendono Zofingen un luogo attraente per vivere per famiglie, coppie e pendolari.
Negli ultimi cinque anni, il comune ha registrato una crescita continua della popolazione di circa +1,9% all'anno. Attualmente, circa 12.796 residenti vivono a Zofingen (al 31...
Dettagli immobile
- Disponibile dal
- Su accordo
- Anno di costruzione
- 1790
- Anno di ristrutturazione
- 2000




