Spazio ufficio in vendita - 3400 Burgdorf
Perché amerai questa proprietà
Posizione centrale
Unico inquilino AAA
Rendimento netto del 5,70%
Organizza una visita
Prenota una visita oggi!
2 unita' commerciali a stwe
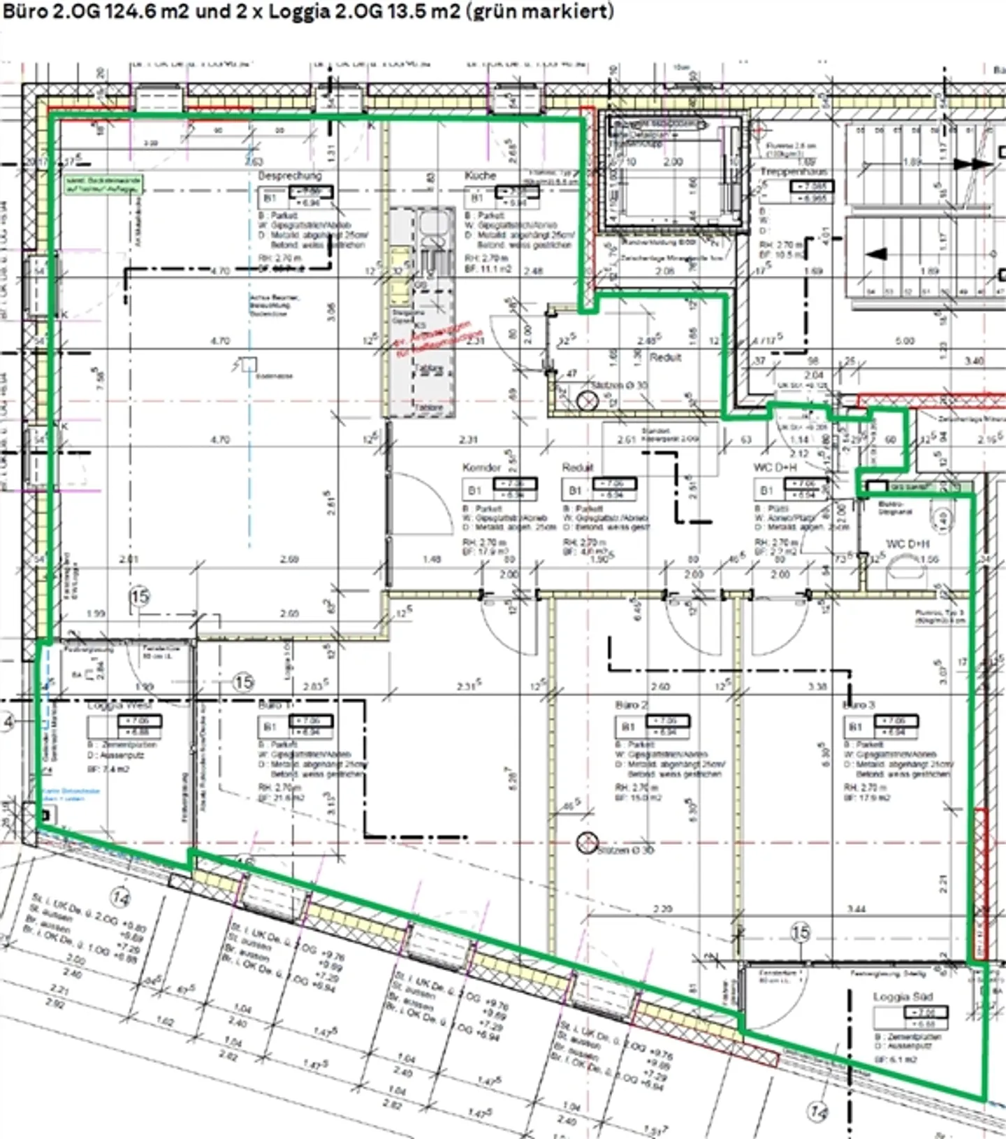
OPPORTUNITÀ D'INVESTIMENTO A BURGDORF (BE)Comptoir Immobilier è stato esclusivamente incaricato della vendita di due lotti commerciali in condominio di nuova costruzione in condizioni straordinarie nel centro città di Burgdorf e in prossimità della stazione ferroviaria.Caratteristiche- Anno di costruzione: 2010- Superficie totale affittabile (BF): 422,6 m2.- Vendita e Leaseback- Inquilino unico (AAA)- Affitto netto: CHF 79'832.- Costi operativi: a carico dell'inquilino.- WAULT: 2 anni con opzion...
Dettagli immobile
- Disponibile dal
- Su accordo



