Studio medico in vendita - Käsereistrasse 3, 4900 Langenthal
Perché amerai questa proprietà
Terrazza spaziosa per clienti
Posizione centrale vicino a Wuhrplatz
Cucina attrezzata e doccia
Organizza una visita
Prenota una visita oggi!
"pratica"
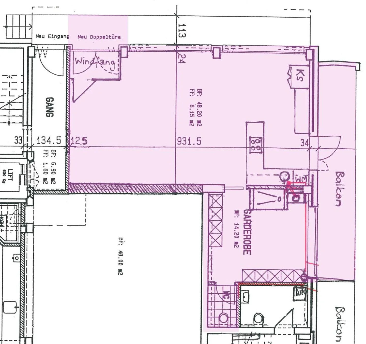
2 stanze collegate con cucina1 toiletteTerrazza leggermente più grandeSuperficie di circa 70m2Affitto CHF 1'000 + 70 costi aggiuntivi in anticipoDisponibile da luglio 2025Ufficio / commerciale / stanze di praticaCentrale a Langenthal accanto a Wuhrplatz.Una stanza con cucina. Piccola stanza separata da porta scorrevole con lavabo / doccia. Toilette extra. Terrazza.In vendita o in affitto.
Dettagli immobile
- Disponibile dal
- Su accordo



