Spazio ufficio in vendita - Im Stadtwald 3, 9400 Rorschach
Perché amerai questa proprietà
Posizione privilegiata a Rorschach
Interamente affittato per reddito costante
Parcheggio disponibile in garage
Organizza una visita
Prenota una visita con Cornelia oggi!
Spazio commerciale attraente sul lago di costanza - vicino alla stazione ferroviaria di rorschach
Benvenuti su skylounge-towers.ch
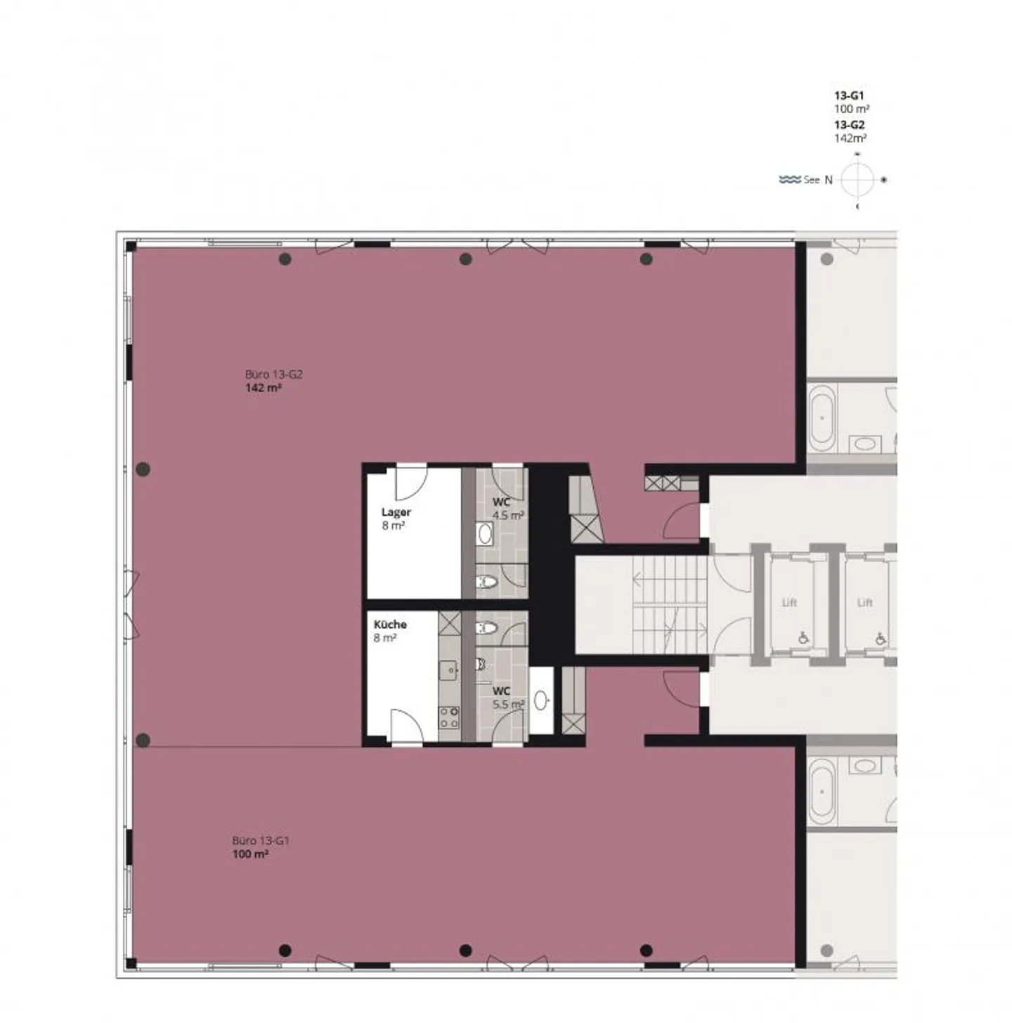
Sopra i tetti di Rorschach si trova questo unico spazio commerciale di circa 142 m2. Lo spazio commerciale è affittato ed è quindi perfetto come investimento.
Il prezzo di acquisto è di CHF 964'500.
Inoltre, sono disponibili posti auto nel garage sotterraneo per tutti gli immobili menzionati a CHF 30'000 ciascuno.
Le immagini sono di una proprietà comparabile.
Sei interessato? Prenota un appuntamento per una visita oggi stesso!
Per documenti di vendita dettagliati e un...
Dettagli immobile
- Disponibile dal
- Su accordo
- Anno di costruzione
- 2015



