Laboratorio in vendita - 1868 Collombey
Perché amerai questa proprietà
Spazi personalizzabili disponibili
Altezza per veicoli grandi
Accesso a Internet in fibra ottica
Organizza una visita
Prenota una visita oggi!
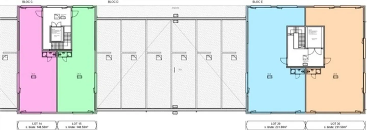
Capannoni industriali, aree e dimensioni su richiesta.
Capannoni industriali, aree e dimensioni su richiesta.
Abbiamo vari capannoni indipendenti con la possibilità di riunire diversi lotti.
- Accesso veicoli tramite porta sezionale di 3,2 x 4,1 m o 4 x 4,1 m a seconda del lotto
- Altezza interna: 4,9 m
- Carico del pavimento: 1.000 kg per m2
- Modifiche a discrezione degli inquilini
- Intensità di corrente: alta intensità di corrente possibile
- Internet in fibra ottica
- Posti auto disponibili
Costruzione tradizionale con muri portanti e facciate in matt...
Dettagli immobile
- Disponibile dal
- Su accordo
- Stanze
- 2



