Laboratorio in vendita - 1868 Collombey
Perché amerai questa proprietà
Layout personalizzabili
Alta capacità di carico 5000 kg
Accesso a Internet in fibra ottica
Organizza una visita
Prenota una visita oggi!
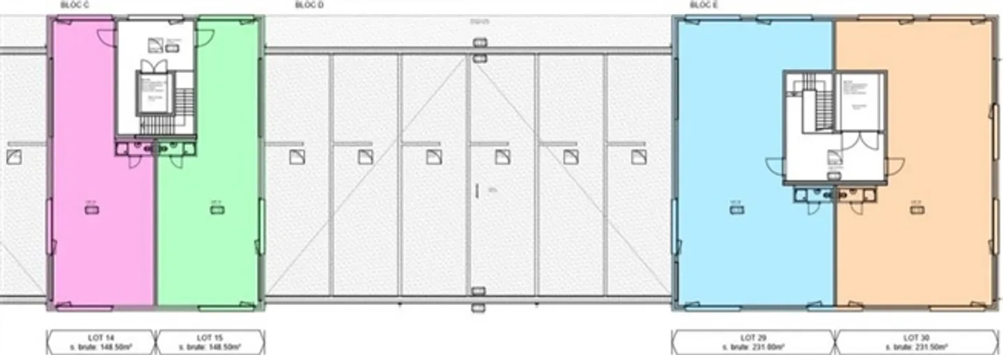
Capannoni industriali, superfici e dimensioni su richiesta.
Capannoni industriali, superfici e dimensioni su richiesta.
Abbiamo vari capannoni indipendenti con la possibilità di riunire diversi lotti.
- Piattaforma elevatrice 300 x 600 cm di profondità, 220 cm di altezza, capacità di carico 5000 kg
- Accesso veicoli a seconda del lotto tramite porta sezionale 3,2 x 4,1 m o 4 x 4,1 m
- Altezza interna: 4,9 m
- Carico del pavimento: 1.000 kg per m2
- Modifiche a discrezione degli inquilini
- Intensità di corrente: alta intensità di corrente possibile
- Internet i...
Dettagli immobile
- Disponibile dal
- Su accordo
- Stanze
- 2



