Commerciale in vendita - Route De Payerne 18, 1532 Fétigny
Perché amerai questa proprietà
Halle multifunzionale prevista
Spazi aperti modulari
Dotato di pompa di calore
Organizza una visita
Prenota una visita con Robert oggi!
Fétigny, in vendita, terreno industriale attrezzato, con permesso valido
Questo terreno idealmente situato all'ingresso del villaggio di Fétigny, in una zona industriale, vicino al villaggio di Fétigny e a Payerne.
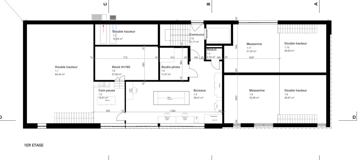
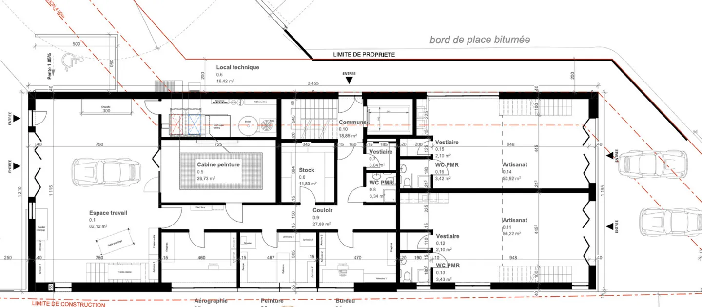
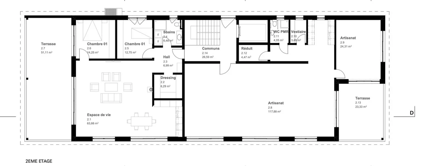
La richiesta di permesso è in corso per una hall multifunzionale con le seguenti caratteristiche.
Al piano terra:
- uno spazio dedicato all'artigianato, composto da più aree con doppia altezza (hall, uffici, servizi igienici, caffetteria, ...)
- due superfici street-box con doppia alte...
Dettagli immobile
- Disponibile dal
- Su accordo
- Superficie terreno
- 1724 m²



