Casa bifamiliare in vendita - Wingertweg, 7026 Maladers
Perché amerai questa proprietà
Vista montagna non ostacolata
Unità abitative indipendenti
Costruzione moderna sostenibile
Organizza una visita
Prenota una visita con Brügger oggi!
Casa bifamiliare di nuova costruzione con vista libera - nuclei familiari indipendenti
Descrizione dell'oggetto
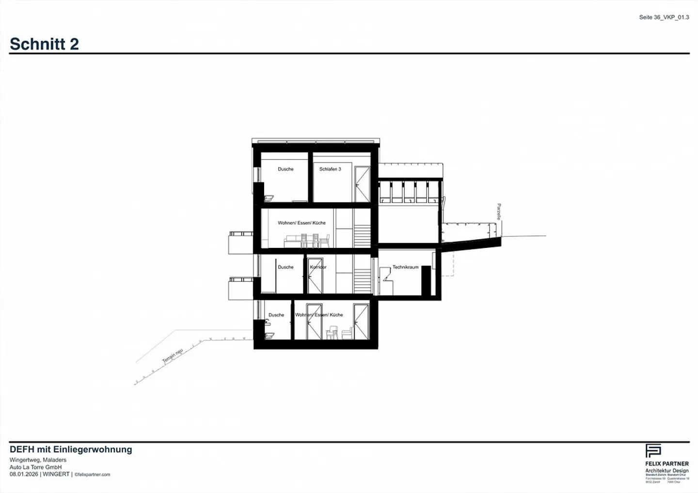
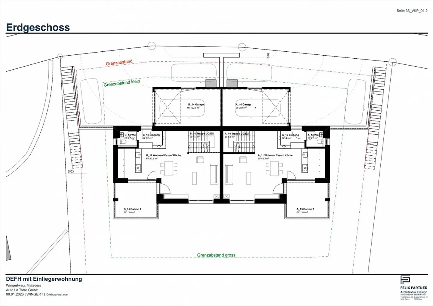
Una moderna casa bifamiliare è in fase di costruzione su un terreno centralmente situato in una posizione soleggiata sulla collina nel villaggio di Maladers. Ogni metà della casa dispone di una generosa superficie abitabile di circa 156 m2.
Le unità sono vendute come nuclei familiari indipendenti e offrono un vero carattere di casa. Dispongono di un proprio ingresso, della propria tecnologia edilizia, nonché di collegamenti separati e sono completamente indipendenti. La pr...
Dettagli immobile
- Disponibile dal
- Su accordo
- Stanze
- 5.5
- Anno di costruzione
- 2026
- Superficie abitabile
- 156 m²
- Superficie terreno
- 393 m²



