Villa Elegante ed Efficiente
Perché amerai questa proprietà
Produzione energetica indipendente
Finiture di alta qualità
Bellissimi giardini pianeggianti
Organizza una visita
Prenota una visita con Orari oggi!
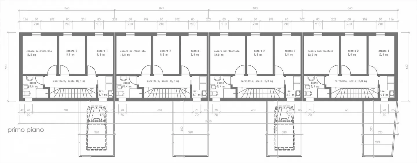
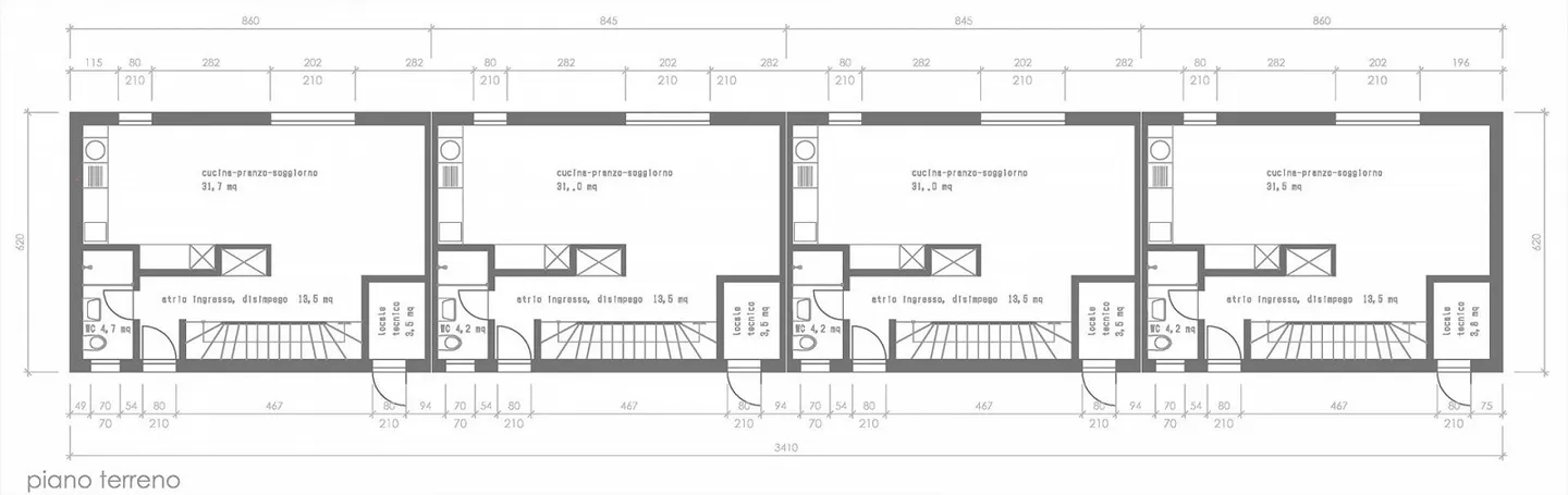
Nuova edificazione nel bel Mendrisiotto per amanti del verde e della natura.
Le nuove villette sorgeranno sulla collina sopra Chiasso, facilmente e comodamente raggiungibili in quanto distanti solo 4 km dal centro cittadino.
La tipologia costruttiva degli edifici prevede, nel suo concetto base, elementi composti da una struttura a telaio con travi in legno lamellare, riempimento con lana minerale e barriera al vapore sigillata internamente.
Le pareti laterali sono rivestite da pannelli isolanti ver...
Dettagli immobile
- Disponibile dal
- Su accordo
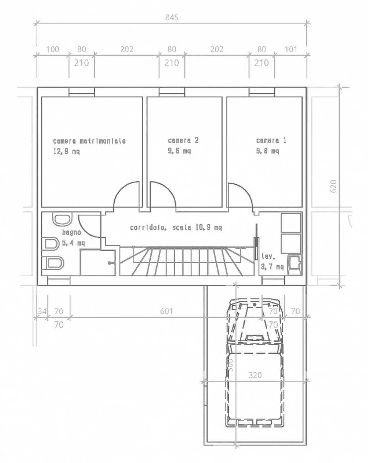
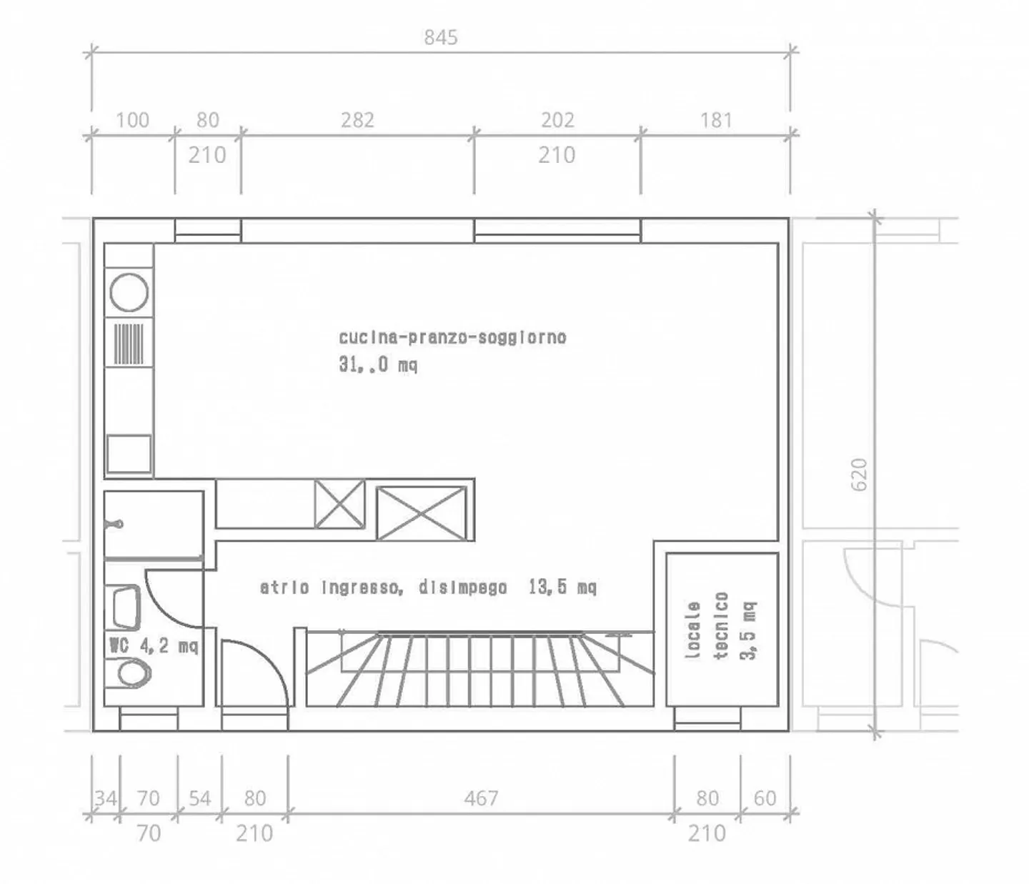
- Stanze
- 4.5
- Superficie abitabile
- 104 m²




