Casa singola in vendita - Via Settala, 6826 Riva San Vitale
Perché amerai questa proprietà
Ampie aree living luminose
Ristrutturato con finiture moderne
Vicino ai servizi e al lago
Organizza una visita
Prenota una visita oggi!
New price, a reddito, a due passi dal lago
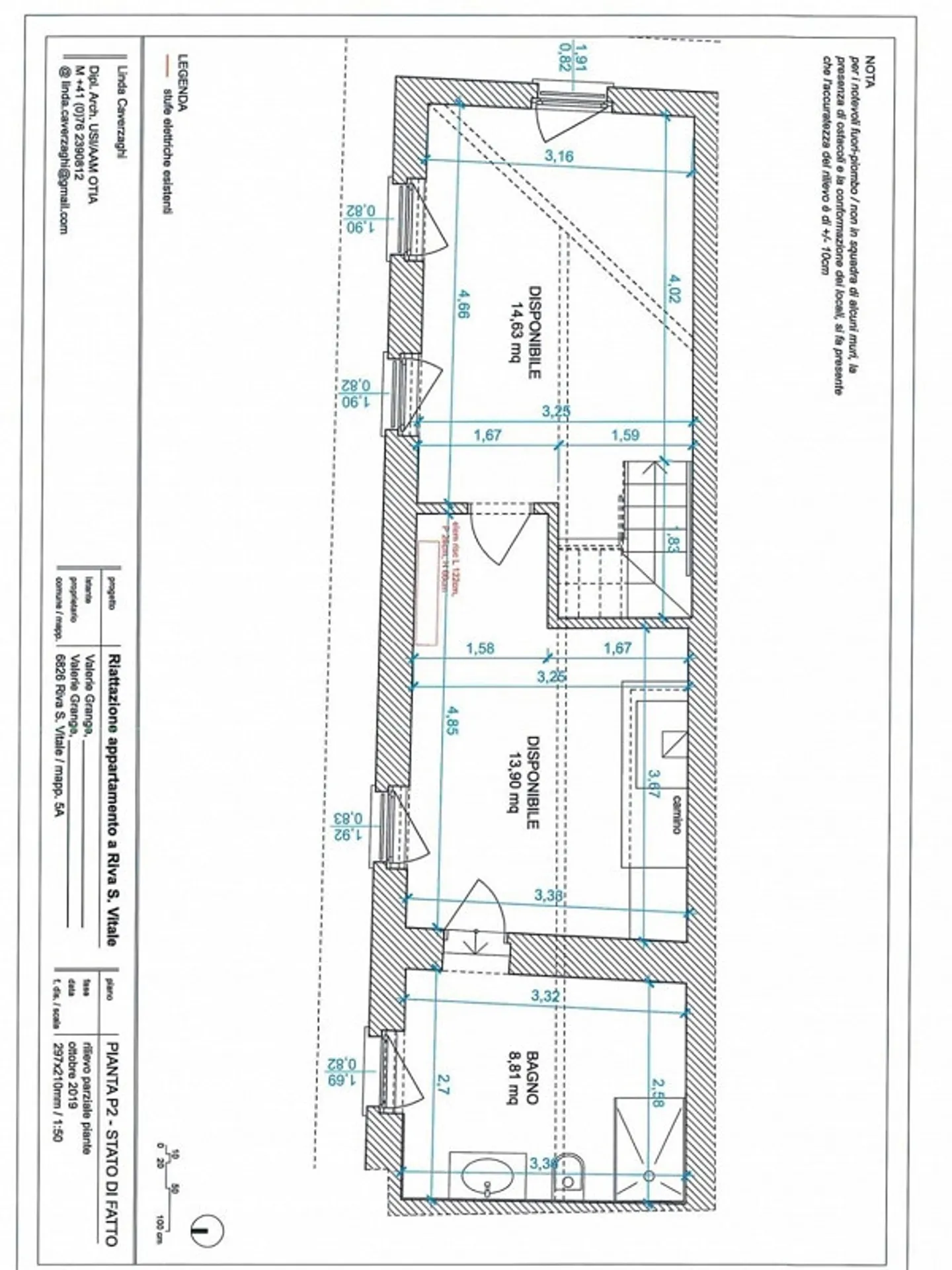
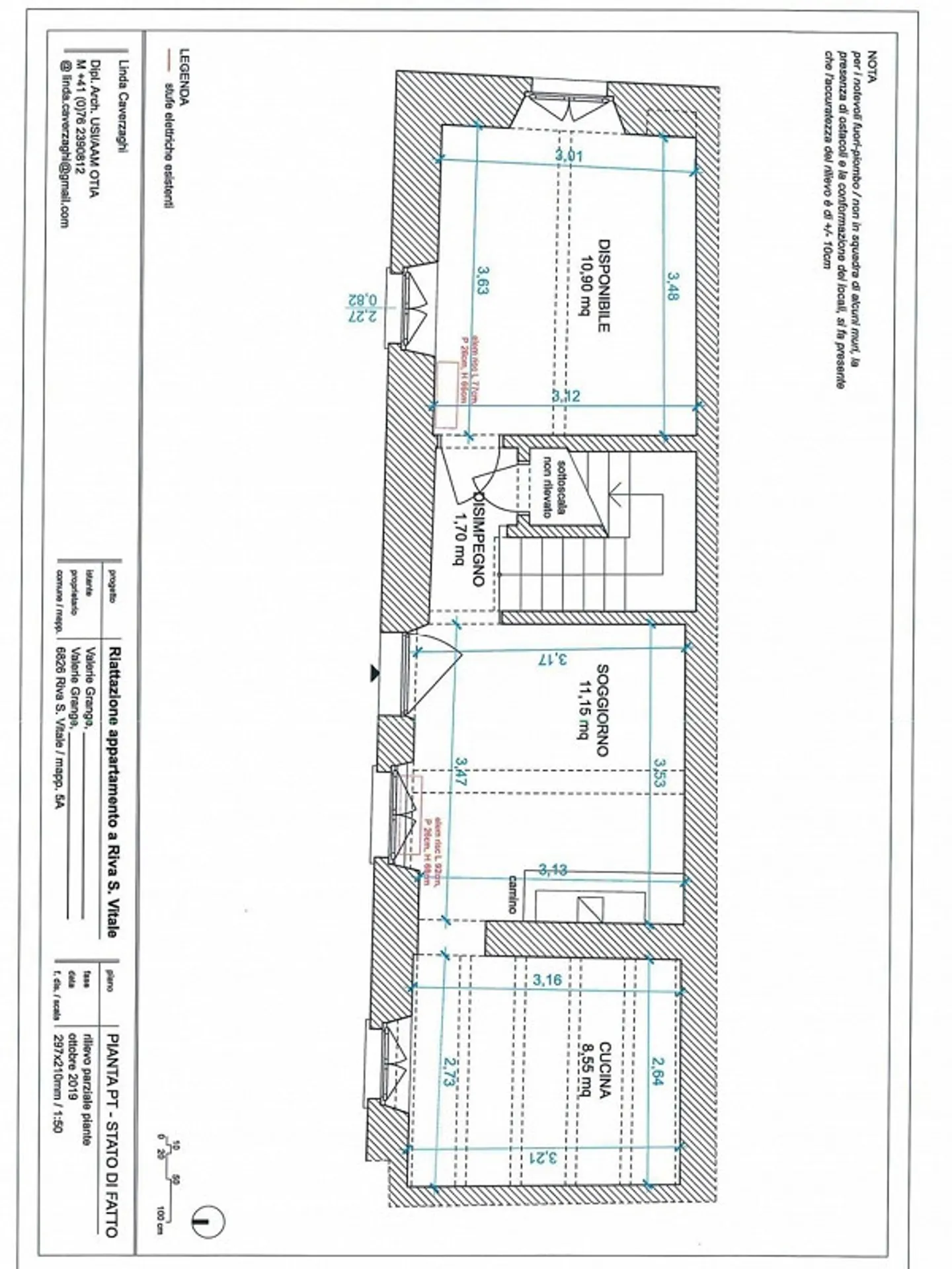
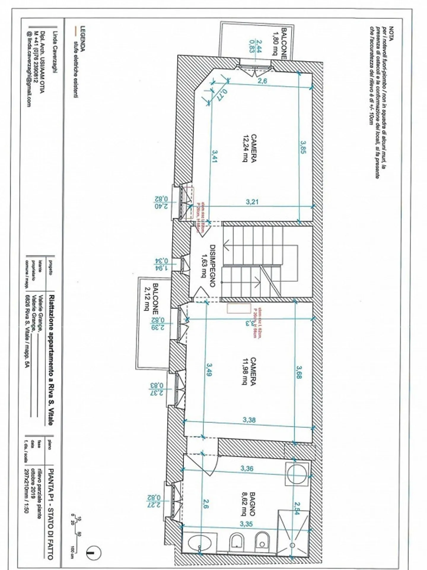
In posizione strategica nel nucleo, storica casa unifamiliare di 6.5 locali distribuiti su tre livelli, caratterizzata da ampi spazi luminosa e posizione di pregio, perfetta soluzione residenziale per chi desidera vivere vicino a tutti i servizi e vicino al lago.
La proprietà è stata oggetto di una ristrutturazione globale che ha riguardato i serramenti, i rivestimenti, l'impianto idraulico ed elettrico, l'installazione di una cucina accessoriata e il rifacimento dei bagni. Gli spazi sono molto l...
Dettagli immobile
- Disponibile dal
- Su accordo
- Stanze
- 6.5
- Anno di costruzione
- 1900
- Superficie abitabile
- 150 m²
- Superficie terreno
- 150 m²



