Casa bifamiliare in vendita - Via Scairone, 6818 Melano
Perché amerai questa proprietà
Balcone con vista lago
Ampio giardino privato
Servizi moderni nelle vicinanze
Organizza una visita
Prenota una visita con Pagani oggi!
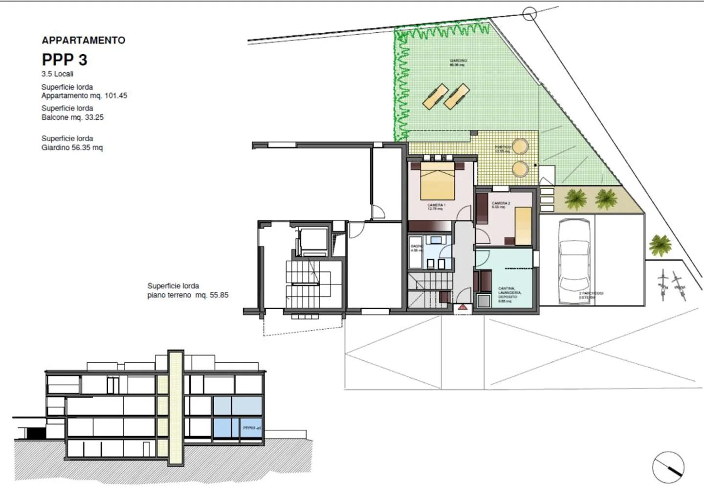
Appartamento duplex 3.5 locali con giardino - nuova costruzione
CONSEGNA PREVISTA ESTATE 2026
A Melano, in zona verde e pianeggiante con meravigliosa vista lago, sorgerà questa moderna e confortevole Residenza di tre piani, composta da sette unità abitative.
Un contesto ideale per coloro che desiderano avere i principali servizi vicini alla propria abitazione.
In prossimità della nuova Residenza si trovano supermercati, farmacia, ristoranti, scuole, asilo, centri estetici, mezzi pubblici e non dimentichiamo lo splendido lido dove in estate è possibile passare d...
Dettagli immobile
- Disponibile dal
- Su accordo
- Stanze
- 3.5
- Anno di costruzione
- 2023
- Superficie abitabile
- 101 m²



