Casa singola in vendita - Via Bellinzona, 6743 Bodio TI
Perché amerai questa proprietà
Spazio abitabile open space
Giardino pianeggiante privato
Design energetico efficiente
Organizza una visita
Prenota una visita con Orari oggi!
Nuova villetta con giardino pianeggiante a 5 minuti da Biasca
La villetta ancora disponibile si colloca in Via Bellinzona con accesso da Via del Mulino, a poca distanza dal nucleo del paese, dai negozi e dalla scuola, in soli 5 minuti si raggiunge lo svincolo autostradale di Biasca.
Il nuovo quartiere è composto da villette unifamiliari ideali per la famiglia, ottimamente inserite nel terreno: Particolare attenzione è stata data alla ricerca della privacy tra di esse, tale obiettivo è stato raggiunto grazie alla tipologia progettuale dell'insediamento.
Le ab...
Dettagli immobile
- Disponibile dal
- Su accordo
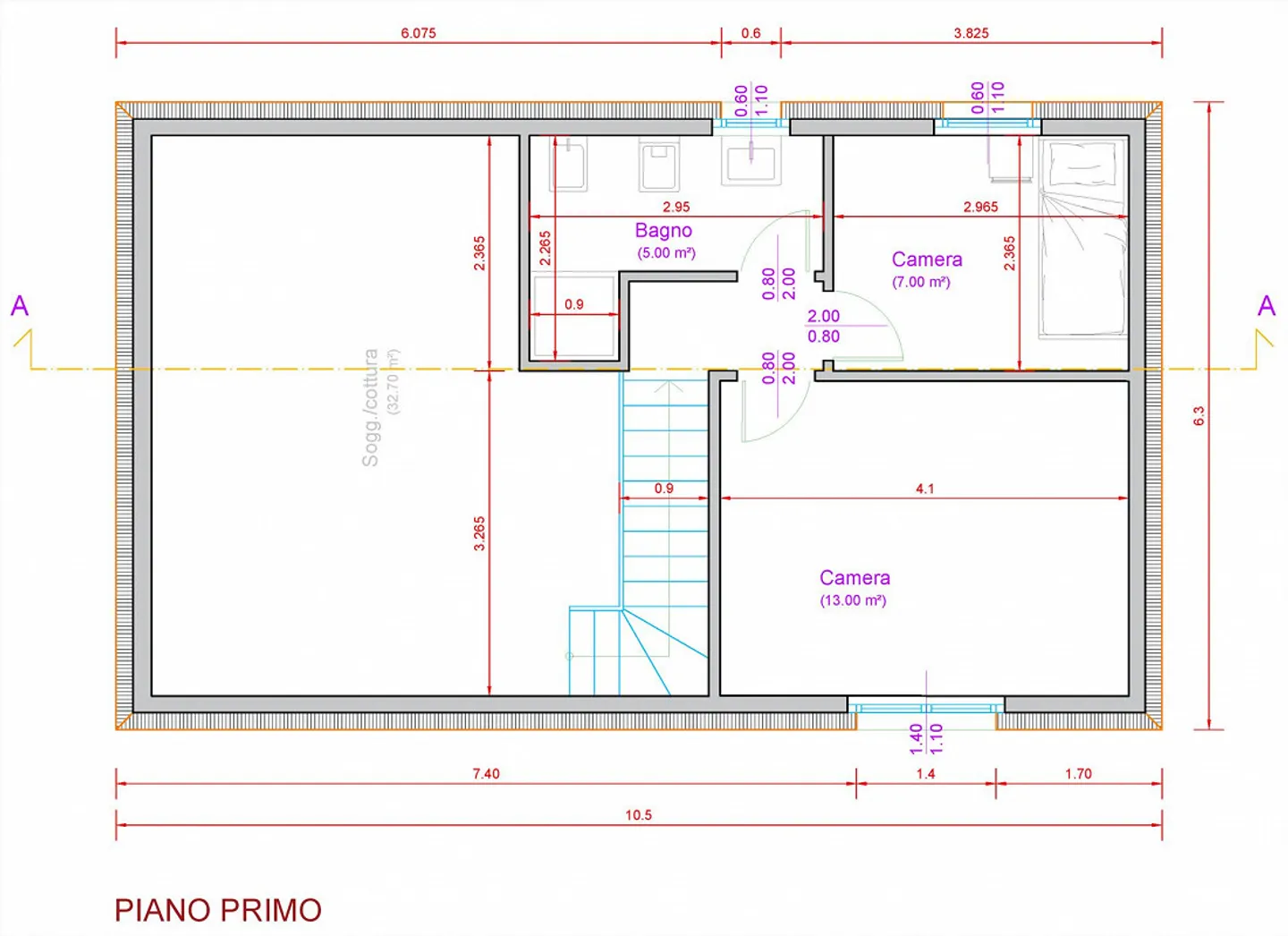
- Stanze
- 4.5
- Anno di costruzione
- 2024
- Superficie abitabile
- 99 m²
- Superficie terreno
- 209 m²


