Casa singola in vendita - Schulstrasse, 5028 Ueken
Perché amerai questa proprietà
Vista panoramica mozzafiato
Terrazza e giardino soleggiati
Posizione ideale per famiglie
Organizza una visita
Prenota una visita oggi!
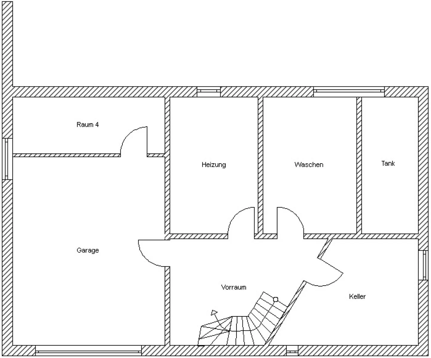
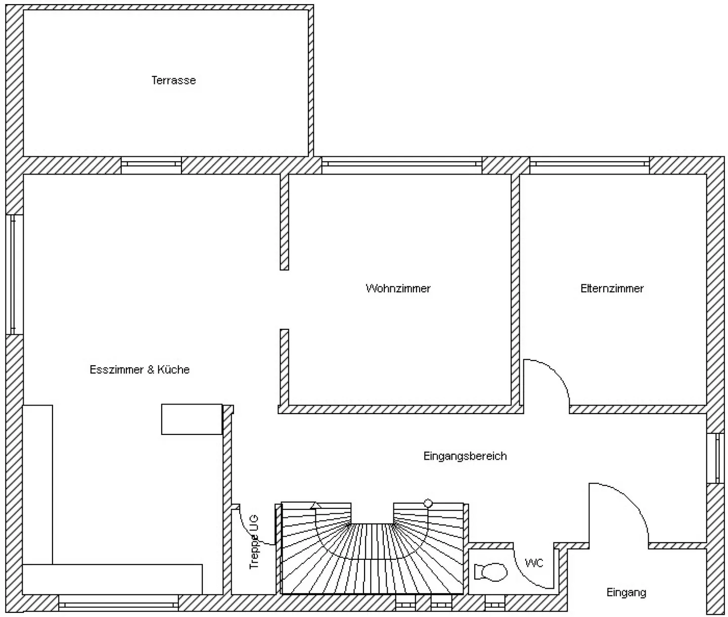
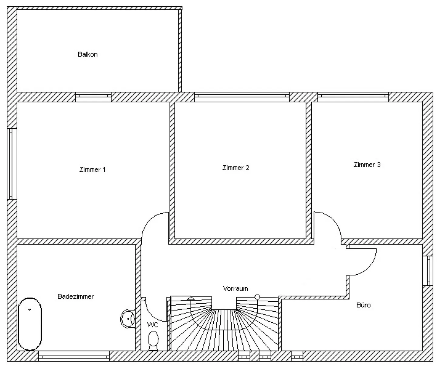
Casa unifamiliare di 7,5 stanze
La casa unifamiliare si trova in un quartiere tranquillo, ben curato e ben situato, che si distingue per la sua privacy e il suo piacevole vicinato. Grazie alla posizione leggermente elevata, si apre una vista meravigliosa, che conferisce alla proprietà una particolare generosità e atmosfera.
L'orientamento a sud e ovest garantisce un'ottimale esposizione al sole per tutto il giorno. In questo modo, puoi goderti il sole dalla mattina alla sera - sia sulla terrazza, nel giardino o nell'area soggio...
Dettagli immobile
- Disponibile dal
- Su accordo
- Stanze
- 7.5
- Bagni
- 1
- Anno di costruzione
- 1965
- Superficie terreno
- 984 m²



