Chalet in vendita - Rue De La Velle, 1936 Verbier
Perché amerai questa proprietà
Ideale per gli amanti dello sci
Potenziale di espansione
Posizione soleggiata e serena
Organizza una visita
Prenota una visita con Malko oggi!
Chalet autentico
Scopri questo chalet autentico nella rinomata regione di Brunet, situato in un contesto idilliaco e che offre una posizione ideale per gli appassionati di sci vicino all'inizio della pista le Rouge. Goditi un'ottima esposizione al sole per tutto il giorno, in un ambiente tranquillo e sereno, pur essendo vicino a ristoranti e negozi.
Caratteristiche dello Chalet:
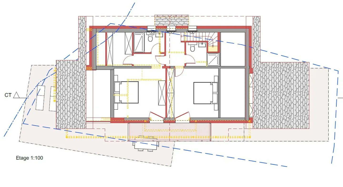
8 stanze
7 camere da letto spaziose
4 bagni
Diviso in 2 appartamenti con ingressi e cucine indipendenti
Grande potenziale di ampliamento: Un ...
Dettagli immobile
- Disponibile dal
- Su accordo
- Stanze
- 8
- Anno di costruzione
- 1964
- Anno di ristrutturazione
- 1988
- Superficie abitabile
- 270 m²
- Superficie utilizzabile
- 270 m²
- Superficie terreno
- 637 m²




