Casa singola in vendita - Route Du Centre, 1741 Cottens FR
Perché amerai questa proprietà
Costruzione ecologica
Posizione centrale
Spazio giardino privato
Organizza una visita
Prenota una visita con Nina oggi!
Nuova costruzione a Cottens
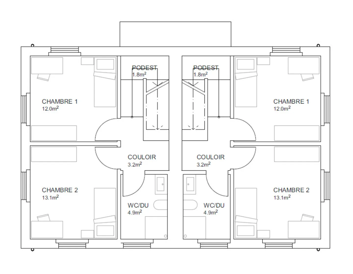
DescrizioneDue case a schiera in costruzione!Nel cuore del villaggio di Cottens, un moderno progetto di case a schiera sta prendendo forma, con finiture di alta qualità, una distribuzione degli spazi ben pensata e un magnifico spazio esterno. Le stanze illuminate dalla luce offrono un'atmosfera armoniosa, ideale per le famiglie. La disposizione interna può essere personalizzata secondo i vostri desideri, in modo da poter plasmare la vostra nuova casa secondo le vostre esigenze.Punti salienti :
- ...
Dettagli immobile
- Disponibile dal
- Su accordo
- Stanze
- 5.5
- Bagni
- 2
- Anno di costruzione
- 2027
- Superficie giardino
- 53 m²
- Superficie terrazza
- 19 m²



