Chalet in vendita - Les Pontins, 2610 Les Pontins
Perché amerai questa proprietà
Chalet con pannelli solari
Piani personalizzabili
Terrazza di 40m² inclusa
Organizza una visita
Prenota una visita con Béatrice oggi!
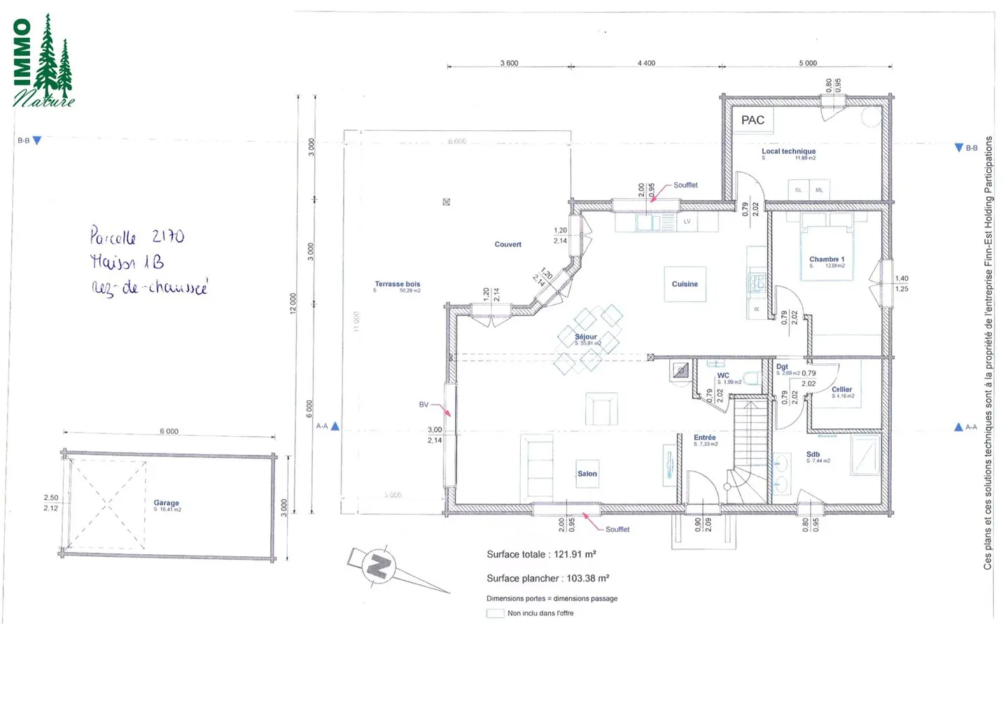
In vendita dal 2025: Sei case/chalet con comfort moderno, 3 modelli o secondo i tuoi piani
In vendita dal 2026 in 2610 Les Pontins, Les Savagnières-Dessous (comune di St-Imier) vicino alle piste da sci, sei case/chalet in legno massiccio con pannelli solari fotovoltaici. Riscaldamento con pompa di calore. RIMANGONO 4 CASE.
In auto, a circa 40 minuti dalla stazione di Biel, 25 minuti da quelle di La Chaux-de-Fonds e Neuchâtel.
Tre modelli sono offerti, ma i piani possono essere adattati ai desideri dell'acquirente; è anche possibile costruire secondo i tuoi piani (salvo diverse disposizi...
Dettagli immobile
- Disponibile dal
- Su accordo
- Stanze
- 6.5
- Superficie abitabile
- 169 m²
- Superficie terreno
- 759 m²
- Volume dell'edificio
- 1044 m³




