Casa singola in vendita - Jörgässli, 3303 Jegenstorf
Perché amerai questa proprietà
Costruzione ecologica
Spazi luminosi e aperti
Area esterna privata
Organizza una visita
Prenota una visita oggi!
Al bächli: la tua casa dei sogni a jegenstorf
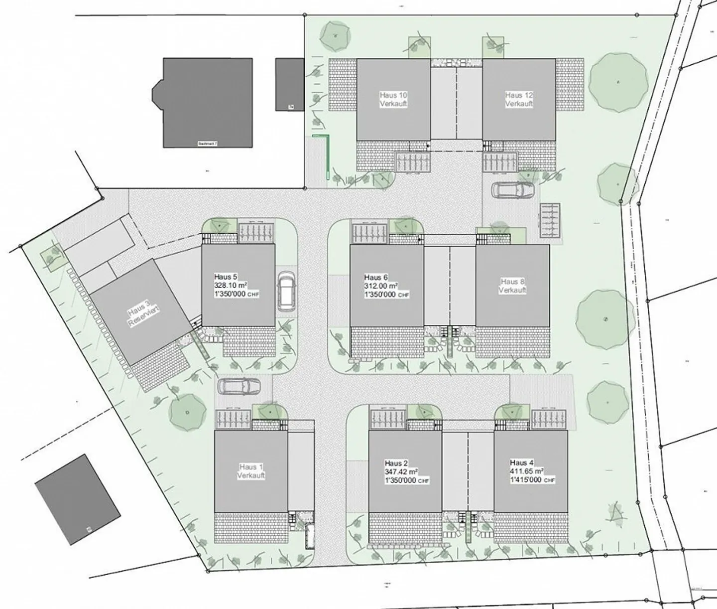
A Jegenstorf, nella poco trafficata strada di quartiere "Jörgässli", sta nascendo il bellissimo progetto "Am Bächli".
Il progetto comprende 9 case unifamiliari, ognuna con 5.5 stanze, ed è una costruzione in legno visivamente splendida che non lascia nulla a desiderare.
Le case 1, 8, 10 e 12 sono già state vendute! Quindi non esitate!
I prezzi di acquisto variano tra Fr. 1'350'000.00 e Fr. 1'500'000.00.
Su tre piani ci sono spazi abitativi, cucina, sala da pranzo, due bagni e quattro stanze distribu...
Dettagli immobile
- Disponibile dal
- Su accordo
- Stanze
- 5.5
- Anno di costruzione
- 2025
- Superficie abitabile
- 165 m²
- Superficie terreno
- 425 m²



