Casa a schiera in vendita - Chemin Du Pontet, 1941 Vollèges
Perché amerai questa proprietà
Cucina aperta spaziosa
Ampio balcone di 30 m²
Zona residenziale tranquilla
Organizza una visita
Prenota una visita con Immobilier oggi!
Villa adiacente
Per il 2026, questo progetto ti offre l'opportunità di acquisire una charmante villa situata nelle alture di Vollèges, permettendoti di godere della tranquillità di un quartiere residenziale e di una bella vista sulle montagne vicine.
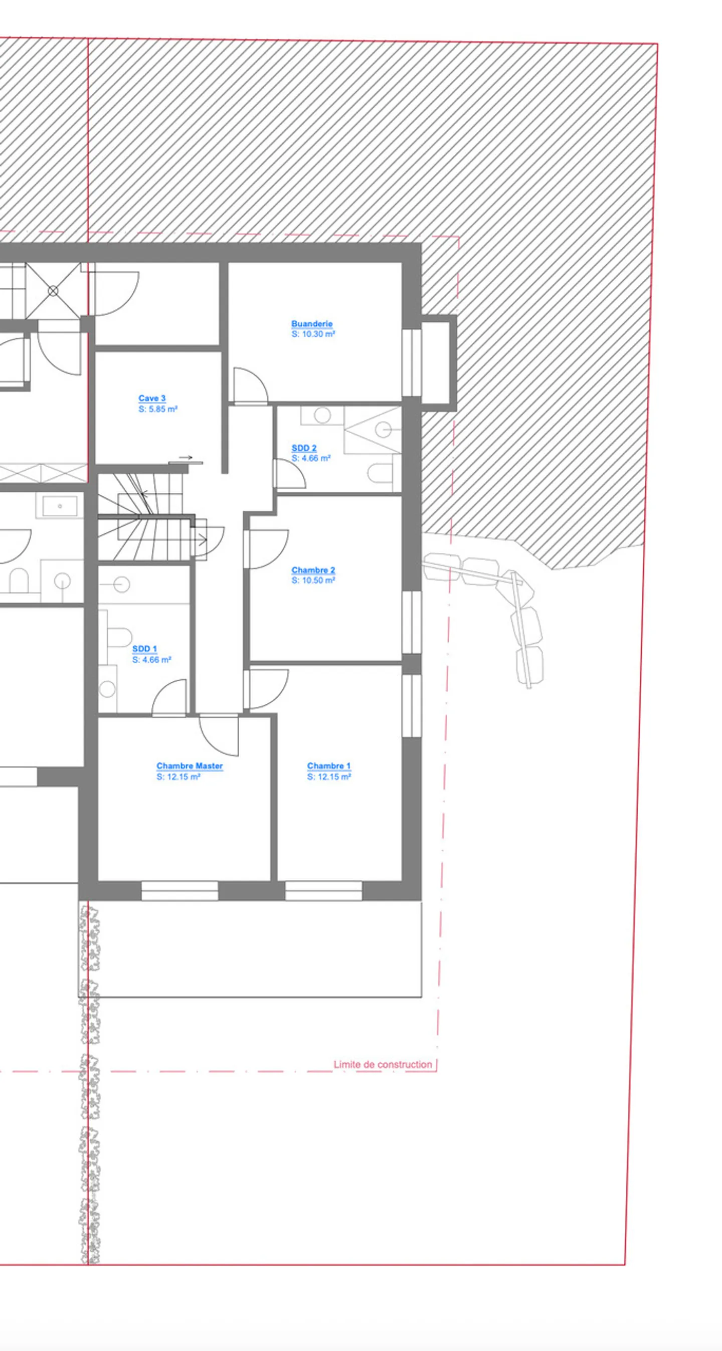
La costruzione è già iniziata e la casa aspetta solo te. Si distribuisce come segue:
Piano superiore:
* Ingresso principale
* Cucina aperta su un ampio soggiorno luminoso
* WC per gli ospiti
* Grande balcone di circa 30 m²
Piano inferiore:
* Possibile ingresso secondari...
Dettagli immobile
- Disponibile dal
- 31.12.2026
- Stanze
- 4.5
- Bagni
- 2
- Anno di costruzione
- 2026
- Superficie abitabile
- 157 m²
- Superficie terreno
- 285 m²
- Superficie terrazza
- 14 m²
- Superficie balcone
- 30 m²



