Casa singola in vendita - Chemin De Mailand, 1941 Vollèges
Perché amerai questa proprietà
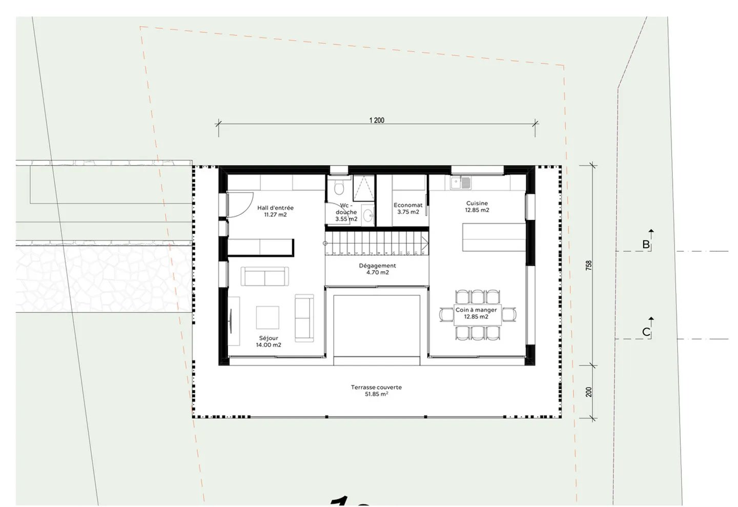
Ingresso spazioso
Ampia terrazza coperta
Finiture personalizzabili
Organizza una visita
Prenota una visita con Immobilier oggi!
Situata alla periferia del pittoresco villaggio di Volleges, a 5 minuti in auto dalla stazione ferroviaria di Sembrancher, questa villa si integra con il carattere locale ed è orientata a Nord-Sud.
L'accesso avviene tramite una strada comunale poco trafficata. Il progetto è situato su un lotto ben soleggiato e molto aperto.
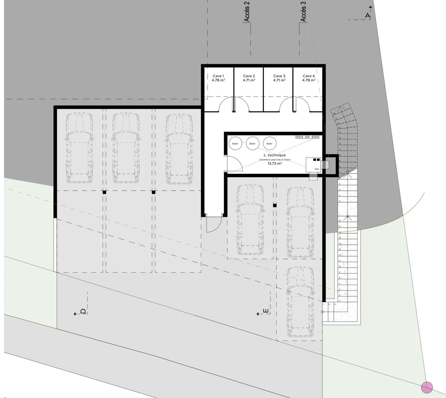
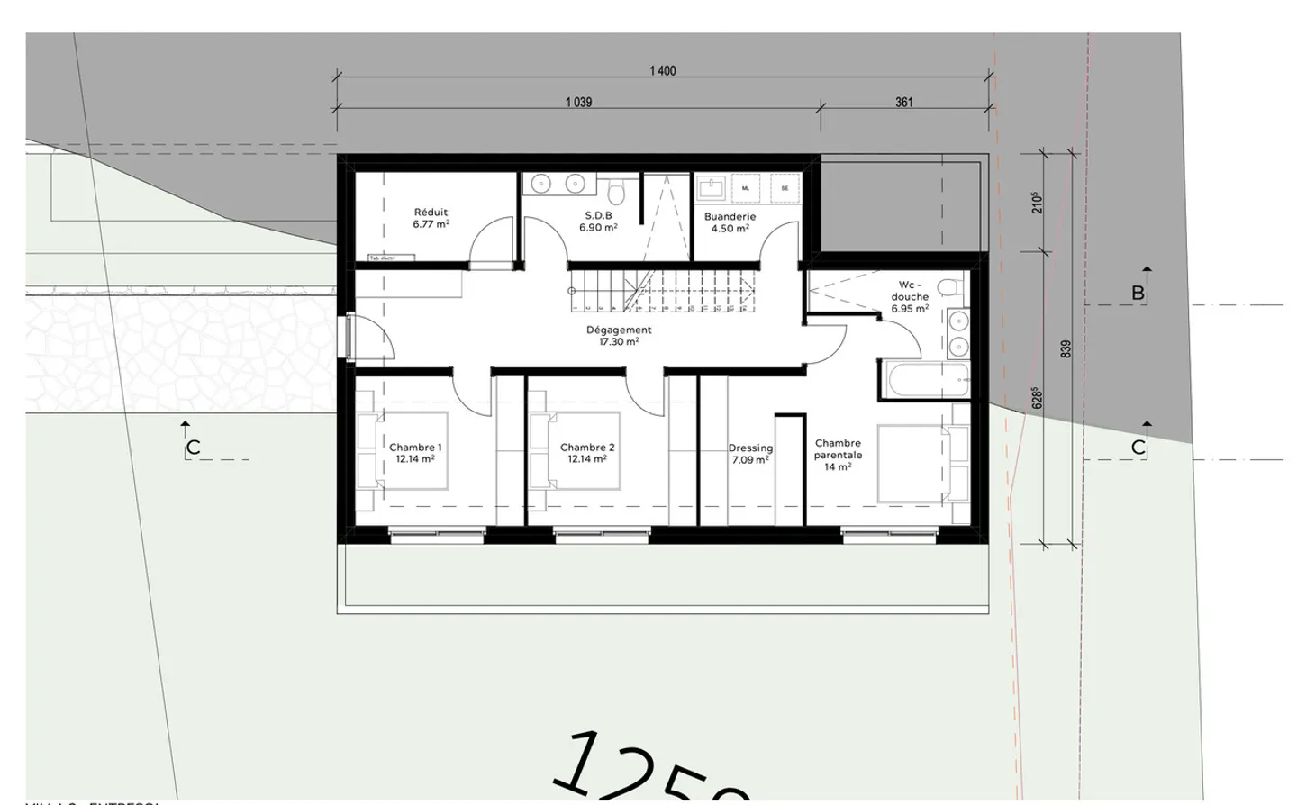
La casa dispone di un accesso privato tramite scala esterna e si compone come segue:
**Piano:
**- Ampio ingresso con armadi a muro integrati
- Cucina aperta, scelta dei materia...
Dettagli immobile
- Disponibile dal
- Su accordo
- Stanze
- 4.5
- Anno di costruzione
- 2026
- Superficie abitabile
- 209.7 m²
- Superficie utilizzabile
- 209.7 m²




