Casa singola in vendita - Chemin De Haute-Pierre, 1112 Echichens
Perché amerai questa proprietà
Accesso giardino privato
Soggiorno luminoso
Design energetico efficiente
Organizza una visita
Prenota una visita oggi!
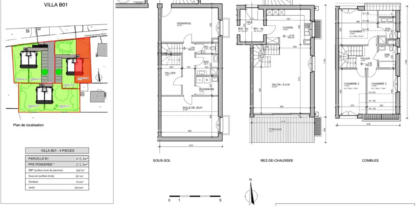
In vendita - nuova casa a schiera a échichens, vd
Situata in un percorso privato composto da sole poche case, nel villaggio di Échichens (VD), questa proprietà offre una posizione rara nella regione di Morges. Combina un facile e rapido accesso ai servizi pubblici e ai negozi con un ambiente tranquillo, circondato da campi e spazi verdi.
### Infrastrutture nelle vicinanze
- Autobus scolastico: ca. 500 m
- Scuola primaria: ca. 1,5 km
- Fermata dell'autobus: ca. 100 m
- Farmacia / Ospedale di Morges: ca. 1 km
- Accesso all'autostrada: ca. 2 km
### Acces...
Dettagli immobile
- Disponibile dal
- Su accordo
- Stanze
- 4.5
- Superficie abitabile
- 213 m²



