Casa grotta in vendita - Bahnhofstrasse, 8555 Müllheim Dorf
Perché amerai questa proprietà
Design energetico efficiente
Giardino ovest soleggiato
Bagno benessere con vasca idromassaggio
Organizza una visita
Prenota una visita con Stefan oggi!
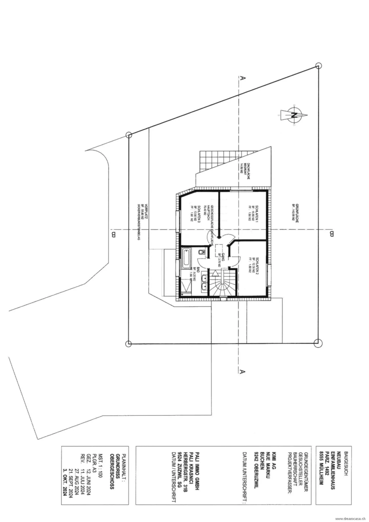
Nuova costruzione, vivere vicino alla stazione e al centro al margine sud del villaggio
Benvenuti nella vostra nuova casa, una casa unifamiliare di alta qualità che unisce comfort abitativo moderno a un'atmosfera armoniosa e adatta alle famiglie. Questa casa unifamiliare appena completata non impressiona solo per le sue caratteristiche energetiche, tra cui un impianto fotovoltaico e una moderna pompa di calore aria-acqua, ma anche per un'atmosfera in cui voi e il vostro bambino vi sentirete a vostro agio fin dal primo momento.
Al piano terra, sarete accolti da un ingresso invitant...
Dettagli immobile
- Disponibile dal
- Su accordo
- Stanze
- 5
- Anno di costruzione
- 2025
- Superficie abitabile
- 120 m²
- Superficie terreno
- 327 m²



