Casa bifamiliare in vendita - 8572 Berg TG
Perché amerai questa proprietà
Posizione idilliaca al confine del bosco
Pompa di calore ad alta efficienza
Giardino privato con terrazza
Organizza una visita
Prenota una visita con Sead oggi!
In una posizione tranquilla e idilliaca al confine del bosco a 8572 Berg, sta nascendo la tua nuova casa - una moderna casa bifamiliare che colpisce per i materiali di alta qualità, le stanze luminose e una pianta adatta alle famiglie.
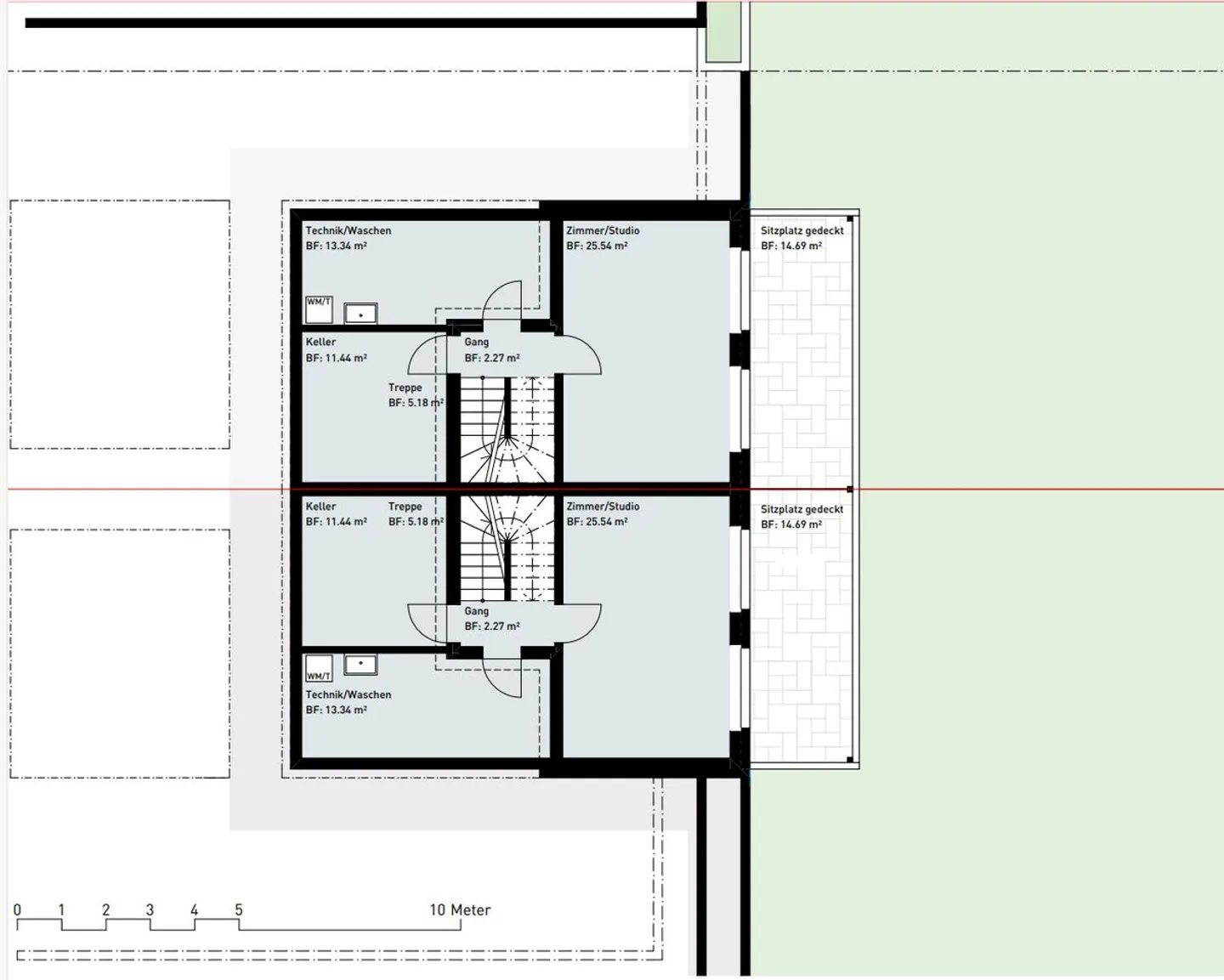
Con una generosa superficie abitabile di 193 m², questa casa offre spazio sufficiente per tutta la famiglia. L'area soggiorno e pranzo aperta con accesso diretto al giardino crea un'atmosfera accogliente e invita a rimanere.
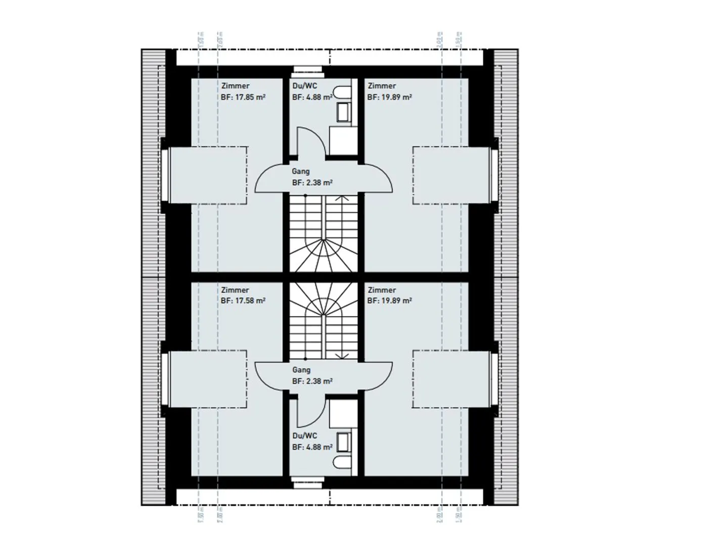
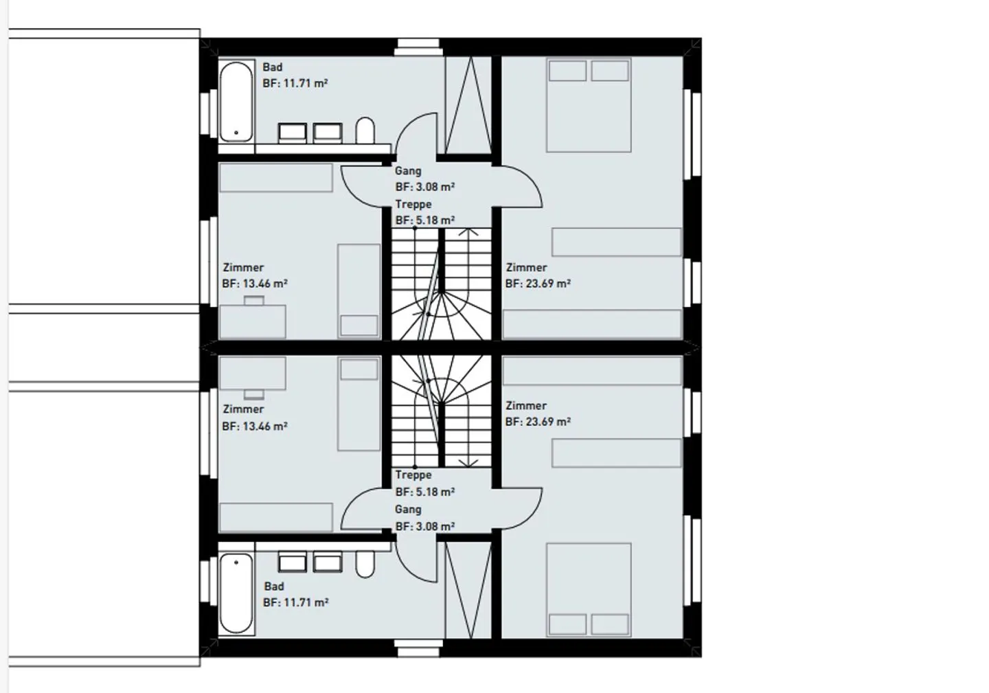
Al piano superiore, troverai la camera ...
Dettagli immobile
- Disponibile dal
- Su accordo
- Stanze
- 6.5
- Anno di costruzione
- 2024
- Superficie abitabile
- 193 m²
- Superficie terreno
- 390 m²



