Casa singola in vendita - Via Rívra 8, 6986 Novaggio
Perché amerai questa proprietà
Vista montagna libera
Ascensore fino all'ingresso
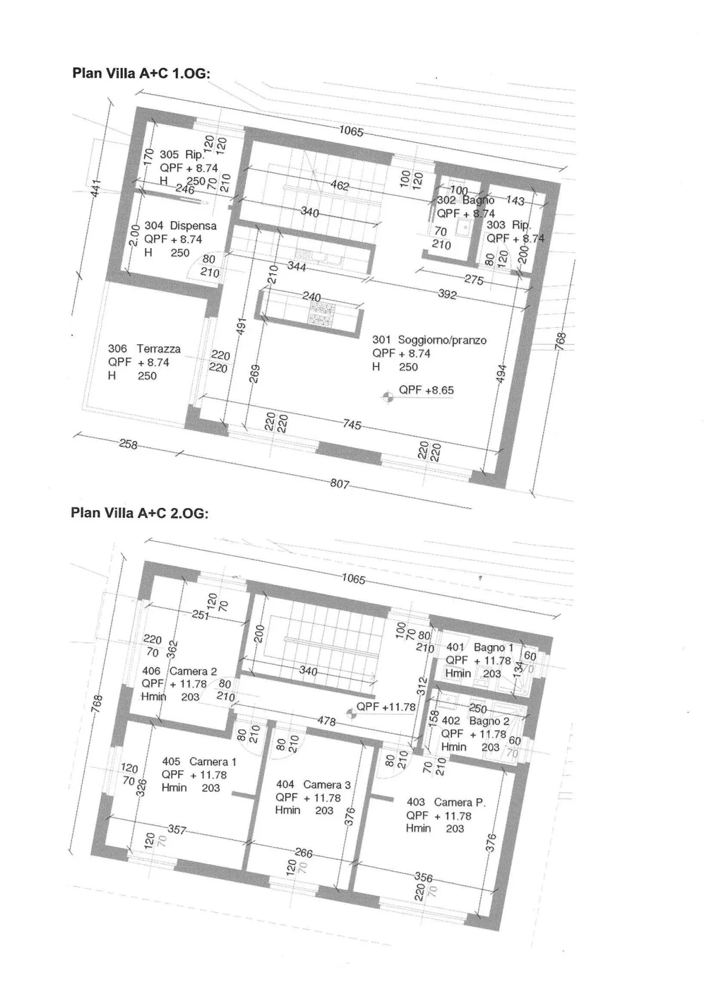
Camere spaziose con soffitti alti
Organizza una visita
Prenota una visita con Andrea oggi!
VENDITA DI UNA CASA UNIFAMILIARE MODERNA
TOP 25092 CASA UNIFAMILIARE A NOVAGGIO
Descrizione della posizione
La proprietà si trova in una posizione tranquilla e ben esposta a sud con vista libera. Il terreno confina direttamente con una scuola e un asilo. I negozi, l'ufficio postale e la banca sono facilmente raggiungibili a breve distanza.
La proprietà offre una vista aperta sulle montagne e le valli circostanti. La spaziosa terrazza solare della casa vicina è anch'essa esposta a sud.
Al piano superiore, tutte le stanze hanno altezze gener...
Dettagli immobile
- Disponibile dal
- Su accordo
- Anno di costruzione
- 2018
- Superficie abitabile
- 200 m²
- Superficie utilizzabile
- 200 m²



