1 / 12

Casa a schiera in affitto - Areisliweg 8, 4437 Waldenburg

5.5 rooms • 162 m² • 107 m² Plot
CHF 420’000.-
CHF 2’593 m²

Perché amerai questa proprietà

Ampio soggiorno con stufa

Bagni ristrutturati al piano

Posizione centrale e tranquilla

Organizza una visita

Prenota una visita oggi!

avenaris Immobilien AG
Questa descrizione è stata tradotta automaticamente da Tedesco.

Casa familiare a schiera in posizione centrale e tranquilla a waldenburg

Questa affascinante proprietà, precedentemente composta da due case, è stata fusa in una spaziosa casa familiare a schiera. Questa riprogettazione crea un'impressionante quantità di spazio con una varietà di opzioni di design.

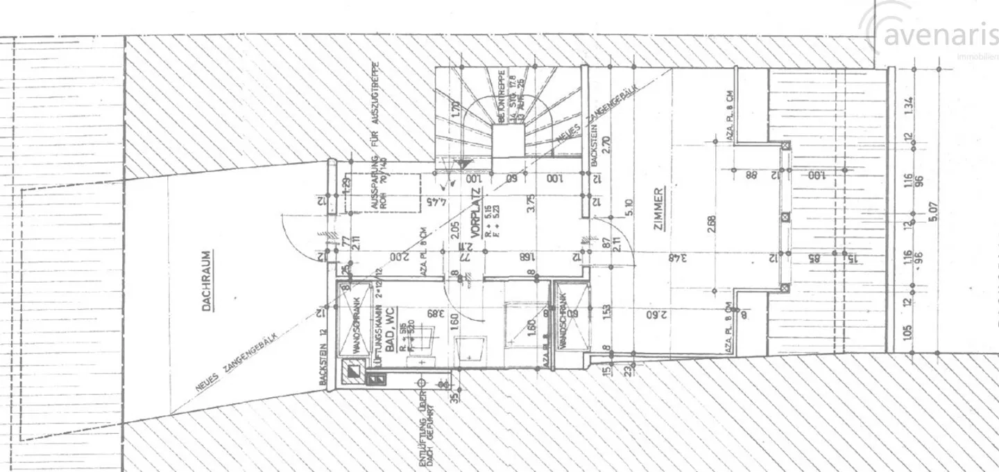
Piano terra:

Il corridoio conduce all'atrio, da cui si apre la sala da pranzo. Adiacente si trova l'ampio e luminoso soggiorno con una stufa a legna. Anche in questo piano troverete la cucina abitabile, dotata di tutti i comuni elettrodomestici da cucina, finestre luminose...

Dettagli immobile

Disponibile dal
Su accordo
Stanze
5.5
Anno di costruzione
1760
Superficie abitabile
162
Superficie terreno
107
Volume dell'edificio
766

Agenzia

avenaris Immobilien AG

Località

Areisliweg 8, 4437 Waldenburg

Fonti