1 / 24

Casa singola in vendita - 7514 Sils/Segl Maria

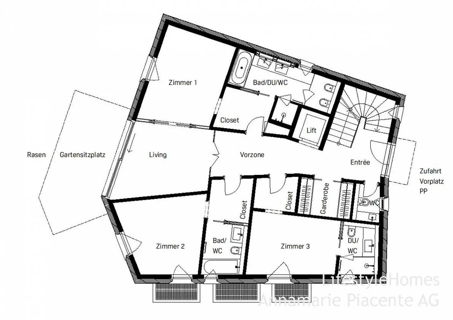
6.5 stanze • 445 m² • 1655 m² Plot
Prezzo su richiesta
-

Perché amerai questa proprietà

Area benessere esclusiva

Interni su misura

Vista sulla natura senza ostacoli

Organizza una visita

Prenota una visita con Piacente oggi!

Piacente
LifestyleHomes Annamarie Piacente AG
Questa descrizione è stata tradotta automaticamente da Tedesco.

Chalet

www.LifestyleHomes.ch

A Sils realizziamo i tuoi sogni abitativi. In una posizione assolutamente privilegiata e con una vista unica sulla pianura di Silser, vendiamo questo chalet di classe superiore.

Un'offerta esclusiva e impressionante per acquirenti con le massime esigenze, che cercano il meglio del lusso e della natura in un rifugio accogliente.

Si tratta di una residenza principale unica nel quartiere di Seglias.

Con un tocco architettonico e uno standard di qualità elevato, è stato creato qui ...

Dettagli immobile

Disponibile dal
Su accordo
Stanze
6.5
Superficie abitabile
445
Superficie terreno
1655

Agenzia

LifestyleHomes Annamarie Piacente AG
LifestyleHomes Annamarie Piacente AG
Indirizzo:St. Moritz, Postfach, 7500
(1 reviews)
Ref: KX888
Online da
22/05/2025
5 mesi fa

Località

7514 Sils/Segl Maria