Casa singola in vendita - 7514 Sils/Segl Maria
Perché amerai questa proprietà
Vista lago mozzafiato
Area benessere esclusiva
Eleganza architettonica
Organizza una visita
Prenota una visita con Piacente oggi!
CHALET
www.LifestyleHomes.ch
A Sils, i sogni di vita diventano realtà.
In una posizione assolutamente privilegiata, con una vista mozzafiato sulla pianura di Silser, vi presentiamo un chalet di prima classe – un rifugio per coloro che desiderano unire lusso, natura e sicurezza al massimo livello.
Unico RESIDENZA PRINCIPALE nel ricercato quartiere di Seglias
Questo chalet esclusivo colpisce per l'eleganza architettonica, le finiture di alta qualità e un'orientamento soleggiato a sud-sud-ovest che rende ogni...
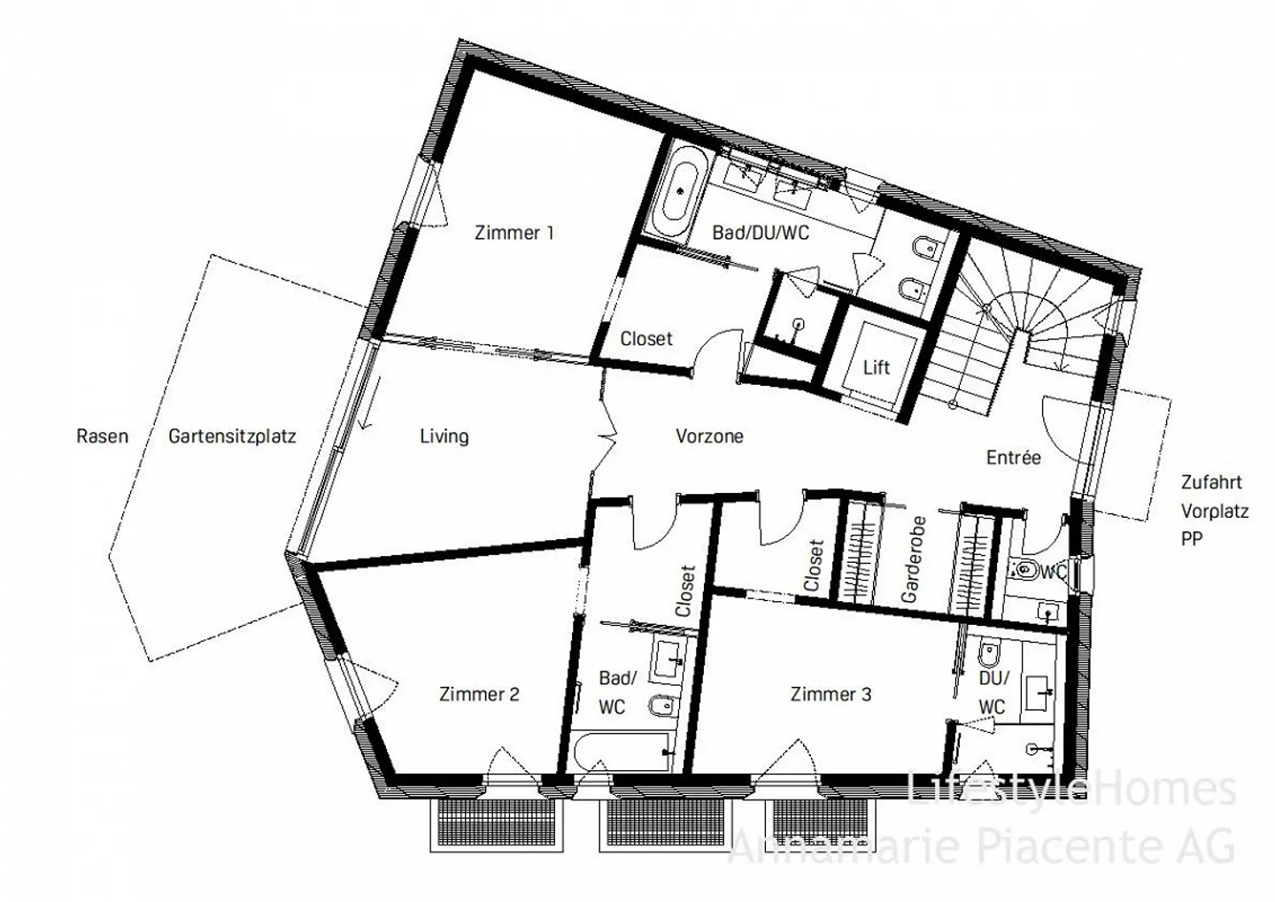
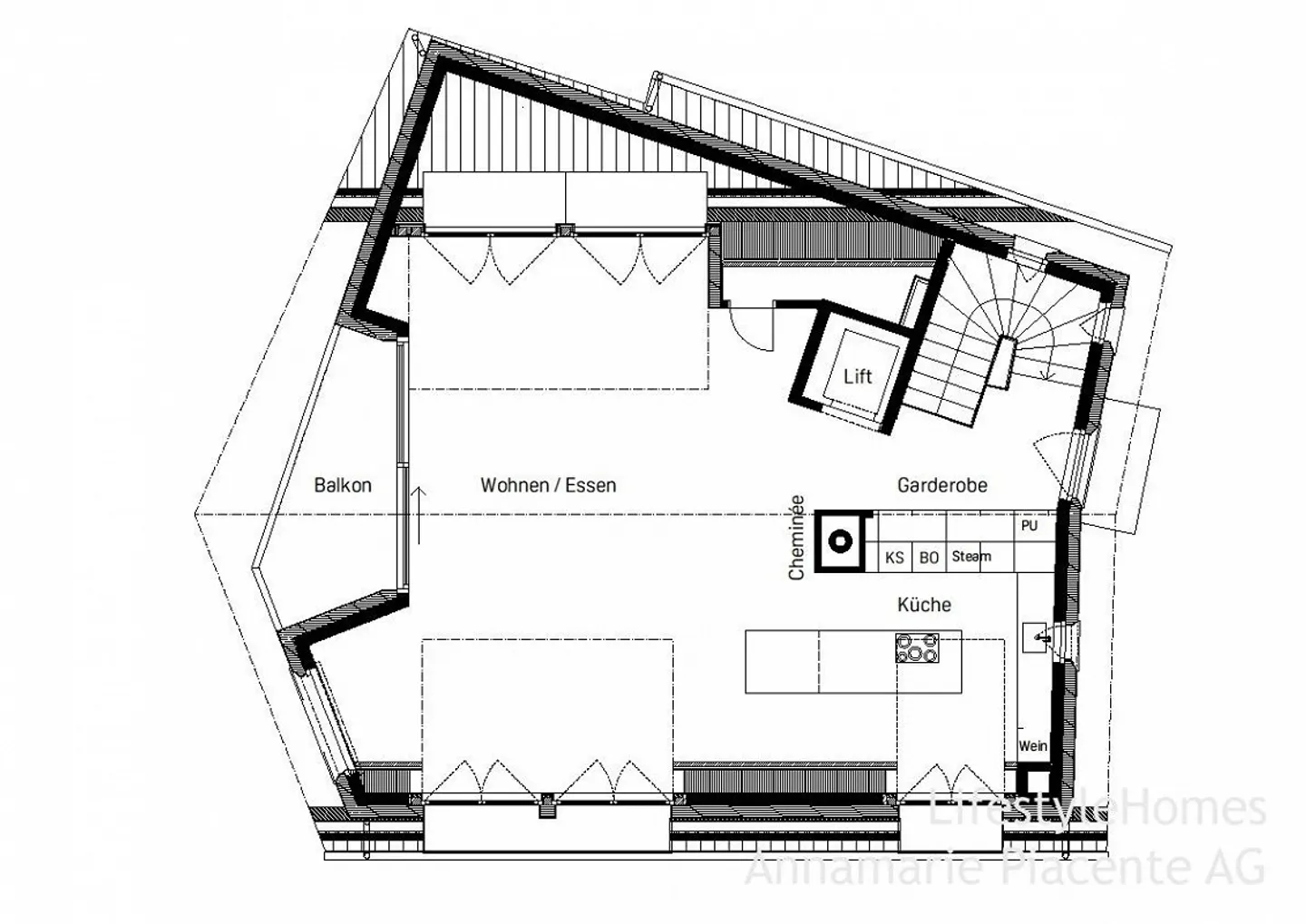
Dettagli immobile
- Disponibile dal
- Su accordo
- Stanze
- 6.5
- Superficie abitabile
- 445 m²
- Superficie terreno
- 1655 m²




