Casa a schiera in vendita - Route Du Moulin-Roget 7, 1237 Avully
Perché amerai questa proprietà
Design energetico efficiente
Interni personalizzabili
Ambiente verde e tranquillo
Organizza una visita
Prenota una visita oggi!
«la grange de moulin roget - promozione di 2 ville contigue - lotto b»
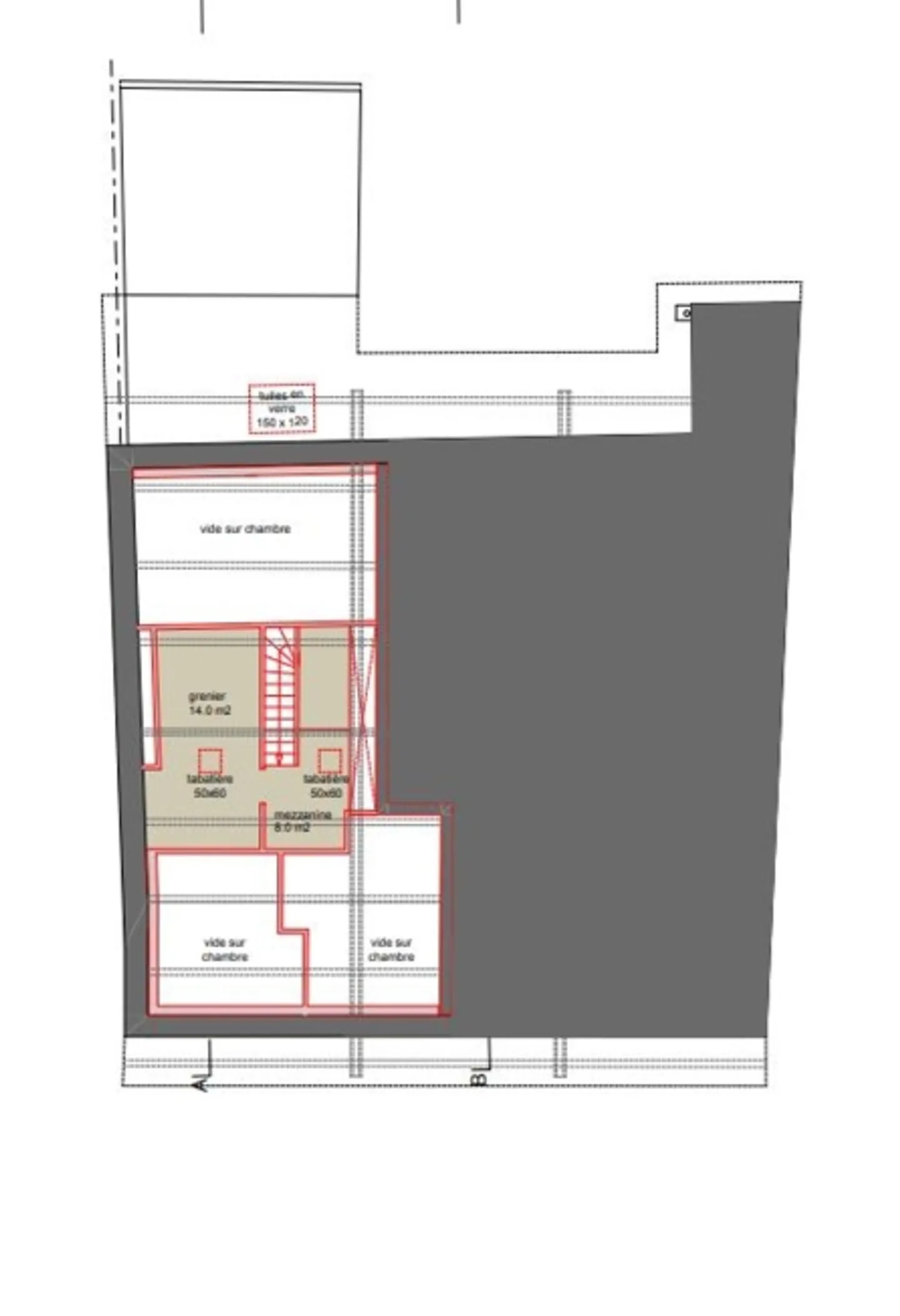
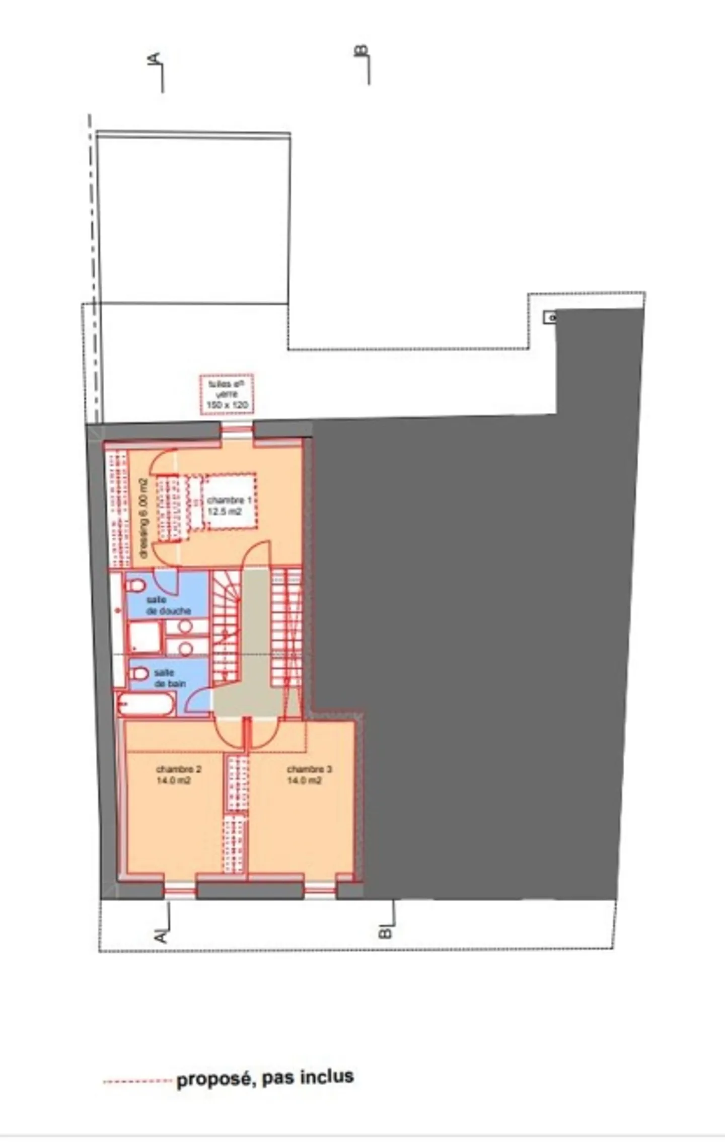
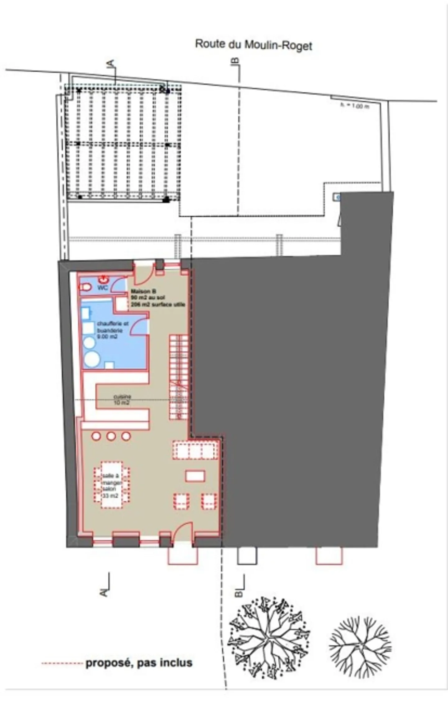
Situata nel cuore del villaggio di Avully, questa nuova promozione, presentata in collaborazione con Friedli Consulting, è il frutto della ristrutturazione di un'antica fienile. Si comporrà di due case contigue su due livelli con soffitte, conformi agli standard HPE (Alta Prestazione Energetica), in vendita su progetti.
Combinando l'autenticità del vecchio con tocchi moderni, questo progetto saprà affascinarvi con il suo ambiente tranquillo e verdeggiante.
Edificata su un lotto di 465 m2, la vill...
Dettagli immobile
- Disponibile dal
- Su accordo
- Stanze
- 6
- Anno di costruzione
- 2026
- Superficie abitabile
- 206 m²
- Superficie terreno
- 465 m²



