Casa singola in vendita - 6998 Monteggio
Perché amerai questa proprietà
Charme rustico con giardino
Bagno e cucina lussuosi
Stupende viste sulla valle
Organizza una visita
Prenota una visita oggi!
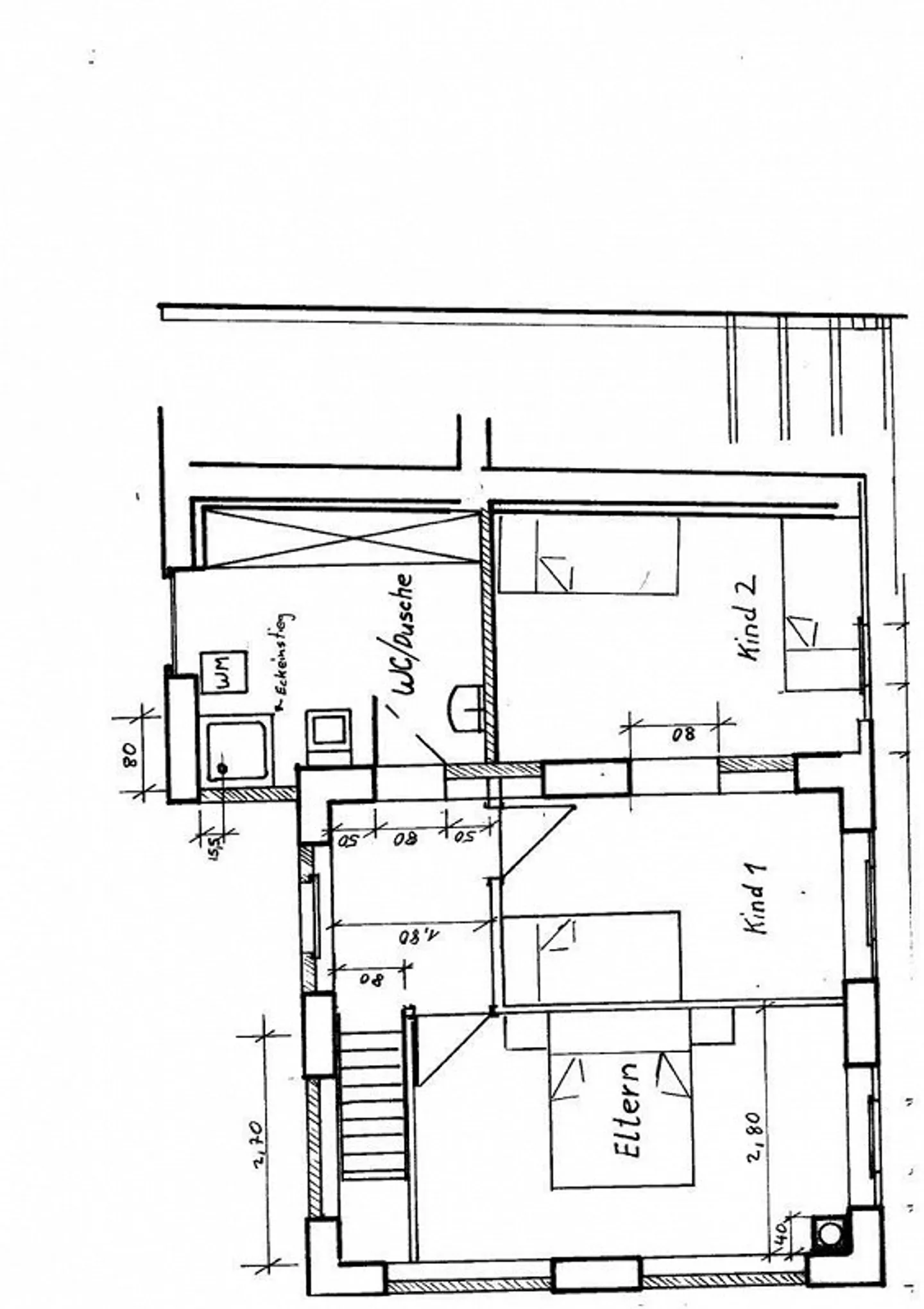
Casa di 4 1/2 locali con bel giardino
6995 Molinazzo di Monteggio
Regione: Malcantone
Spazio vitale: circa 100m2
Area del lotto: circa 440m2
Piani: 2
Condizione: molto buona
Bagno/doccia/WC: 2
Riscaldamento: elettrico e camino
Seconda casa: sì
Posti auto: Garage
Elettricità: sì e Wlan
Posizione: posizione tranquilla e soleggiata
Vista: sì
Scuole: sì
shopping: sì
trasporto pubblico: 100m
Distanza dalla prossima città: 6km
Distanza autostrada: 15km
Descrizione dell'immobile
Questa bellissima casa ticinese di 4 ½ locali, si trova in u...
Dettagli immobile
- Disponibile dal
- Su accordo
- Stanze
- 4.5
- Superficie abitabile
- 100 m²
- Superficie terreno
- 440 m²



