1 / 55

Casa singola in affitto - 6995 Madonna del Piano

8.5 rooms • 200 m² • 552 m² Plot
CHF 1’200’000.-
CHF 6’000 m²

Perché amerai questa proprietà

Charme rustico con camino

Bellissimo giardino con pergola

Posizione centrale vicino ai laghi

Organizza una visita

Prenota una visita con GEIERSBERGER oggi!

GEIERSBERGER IMMOBILIEN
Geiersberger Immobilien
Questa descrizione è stata tradotta automaticamente da Tedesco.

6995 Molinazzo di Monteggio

Regione: Malcantone

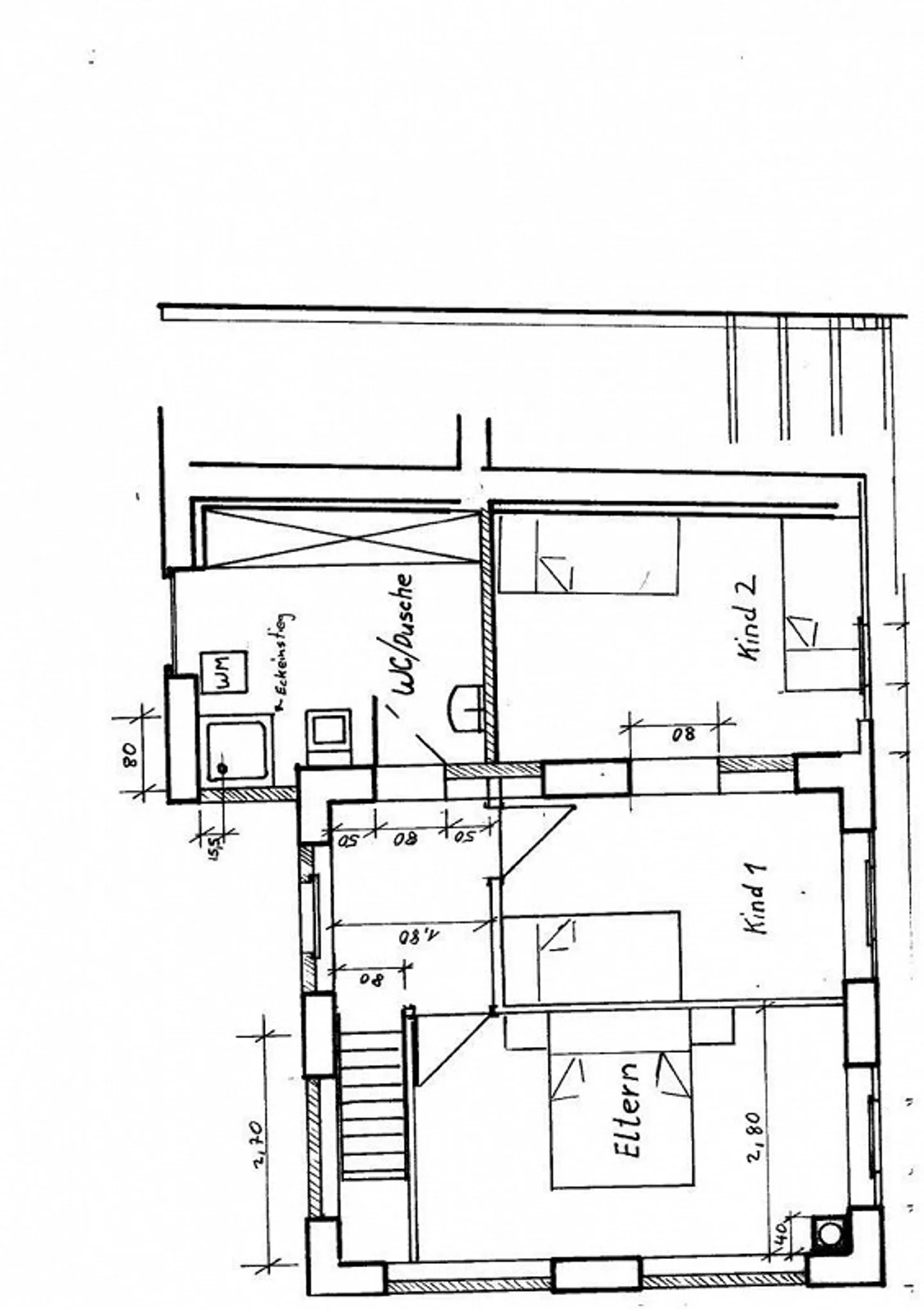
Spazio vitale: circa 100m2

Area del lotto: circa 440m2

Piani: 2

Condizione: molto buona

Bagno/doccia/WC: 2

Riscaldamento: elettrico e camino

Seconda casa: sì

Posti auto: Garage

Elettricità: sì e Wlan

Posizione: posizione tranquilla e soleggiata

Vista: sì

Scuole: sì

shopping: sì

trasporto pubblico: 100m

Distanza dalla prossima città: 6km

Distanza autostrada: 15km

Descrizione dell'immobile

Questa bellissima casa ticinese di 4 ½ locali, si trova in u...

Dettagli immobile

Disponibile dal
Su accordo
Stanze
8.5
Superficie abitabile
200
Superficie terreno
552

Caratteristiche

Garage
Parcheggio

Agenzia

Geiersberger Immobilien
Indirizzo:Stationsstrasse 8, 6023, Rothenburg
Ref: mig-1936-5423581

Località

6995 Madonna del Piano

Fonti