Casa singola in vendita - 6986 Novaggio
Perché amerai questa proprietà
Giardino privato spazioso
Accesso al balcone panoramico
Spazio sotterraneo versatile
Organizza una visita
Prenota una visita con Stabile oggi!
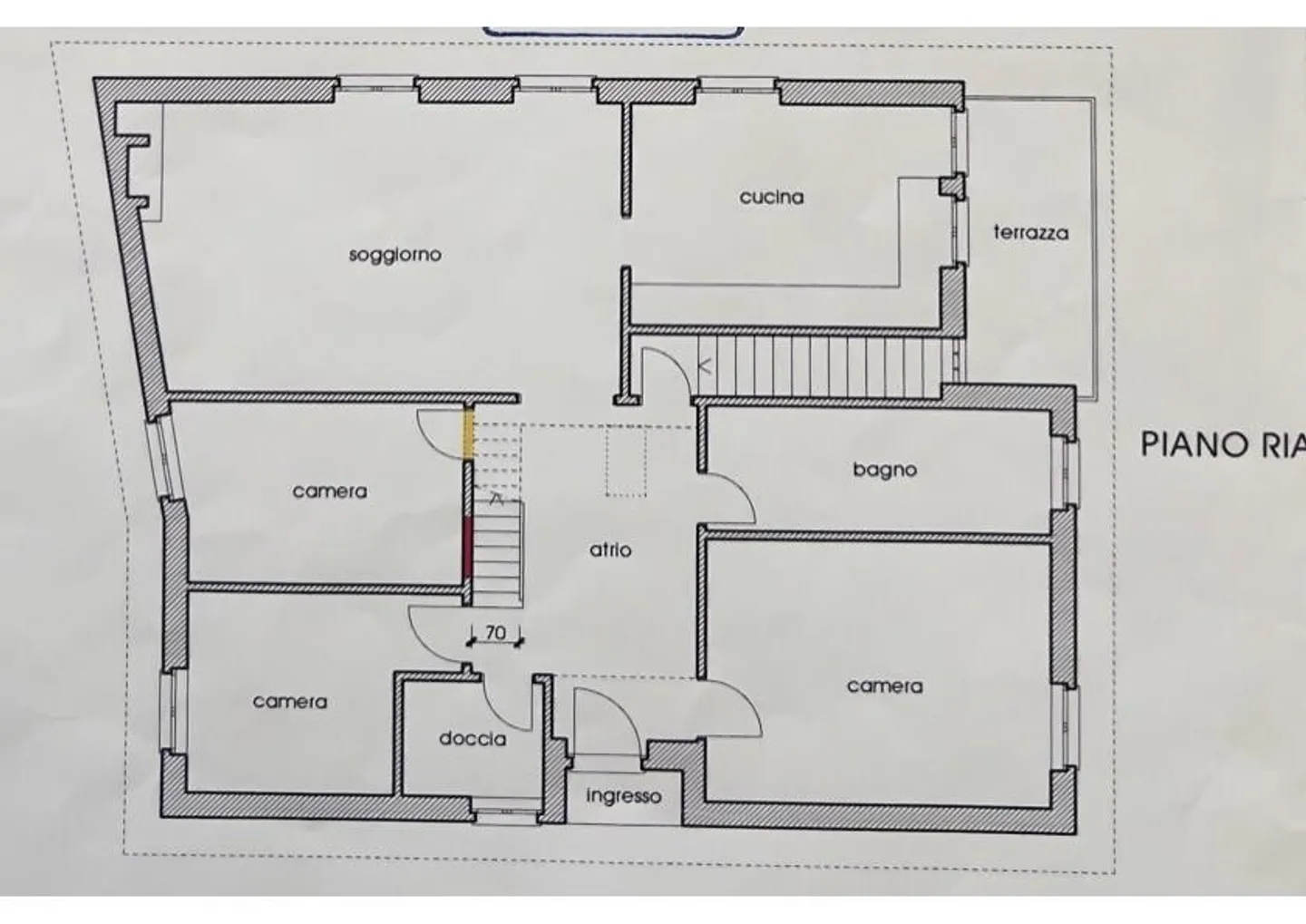
Bellissima casa con 6,5 stanze nel verde a Banco
Casa unifamiliare spaziosa e soleggiata con 6,5 stanze, situata a Banco (Malcantone) in un ambiente tranquillo e verdeggiante. La proprietà dispone di una superficie abitabile di circa 170 m² ed è circondata da un giardino privato di oltre 300 m², piantumato con alberi da frutto, alberi ornamentali e orti.
La casa, costruita nel 1982, è stata costantemente mantenuta e modernizzata nel tempo, presentandosi oggi in ottime condizioni e offrendo spazi generosi sia all'interno che all'esterno.
La cas...
Dettagli immobile
- Disponibile dal
- 03.10.2025
- Stanze
- 6.5
- Anno di costruzione
- 1982
- Superficie abitabile
- 170 m²
- Superficie utilizzabile
- 170 m²
- Superficie terreno
- 511 m²



