Casa singola in vendita - 6943 Vezia
Perché amerai questa proprietà
Posizione centrale soleggiata
Ampie terrazze esterne
Bella vista sul Malcantone
Organizza una visita
Prenota una visita oggi!
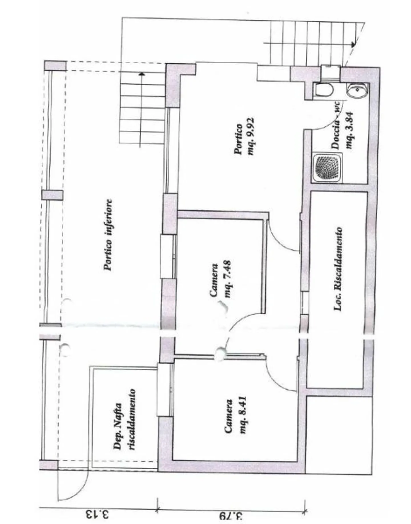
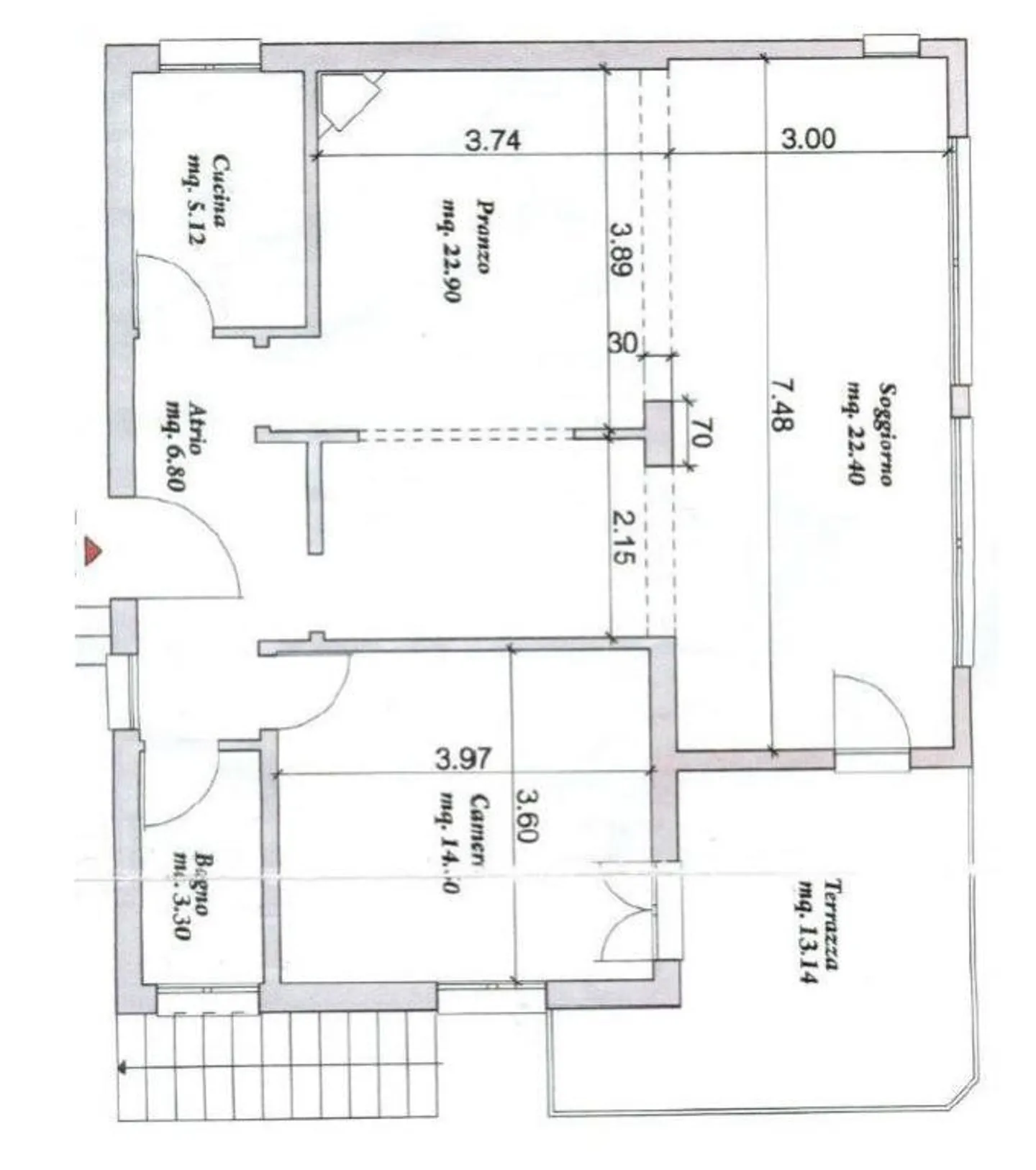
Villetta di 5 1/2 locali e 3 locali con giardino
6943 Vezia, Via ai Lotti 4bRegione: LuganeseSuperficie abitabile: ca. 240m2Superficie terreno: ca. 650 m2Piani: 3Anno di costruzione: 2004Posizione: molto soleggiata con bella vistaCamere: 5Terrazze: 2Riscaldamento: gasPosteggi: 4Negozzi: 300 mMezzi pubblici: 300 mScuole: 500 mDistanza citté: 2 kmDistanza autostrada: 1kmDescrizioneQuesta villetta di 5 ½ locali con tre camere nel piano terra è situata alla Via ai lotti 4b, a Vezia.L'edificio è del 2004 e si trova in buono stato. La casa è spazios...
Dettagli immobile
- Disponibile dal
- Su accordo
- Stanze
- 8.5
- Superficie abitabile
- 240 m²
- Superficie terreno
- 650 m²



