Casa singola in vendita - 6875 Casima
Perché amerai questa proprietà
Completamente arredato e pronto
Soggiorno luminoso con balcone
Posizione tranquilla in collina
Organizza una visita
Prenota una visita oggi!
Casa ammobiliata di 4.5 locali nel verde a castel san pietro
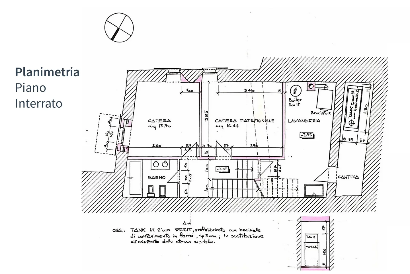
Proponiamo in vendita una splendida casa di nucleo unifamiliare di 4.5 locali di circa 190 mq, edificata nel 1989 e recentemente ristrutturata, in ottimo stato di manutenzione. La proprietà si trova a Casima, nel comune di Castel San Pietro, in una suggestiva zona collinare immersa nella natura e nella tranquillità, a soli sei chilometri dal centro di Castel San Pietro, dove sono presenti tutti i principali servizi come scuole, posta e bar, e a circa venti minuti da Mendrisio. Una soluzione idea...
Dettagli immobile
- Disponibile dal
- 20.08.2025
- Stanze
- 4.5
- Anno di costruzione
- 1989
- Superficie abitabile
- 190 m²
- Superficie utilizzabile
- 190 m²




