Villa in vendita - 6828 Balerna
Perché amerai questa proprietà
Accesso al giardino privato
Strada residenziale tranquilla
Ampio soggiorno open space
Organizza una visita
Prenota una visita con Bernasconi oggi!
Casa unifamiliare luminosa con giardino privato
In una zona verde e tranquilla, ma a pochi passi dalla stazione ferroviaria e dall'uscita dell'autostrada, alla fine di una strada privata riservata esclusivamente ai residenti, vendiamo una casa unifamiliare luminosa con buona esposizione al sole.
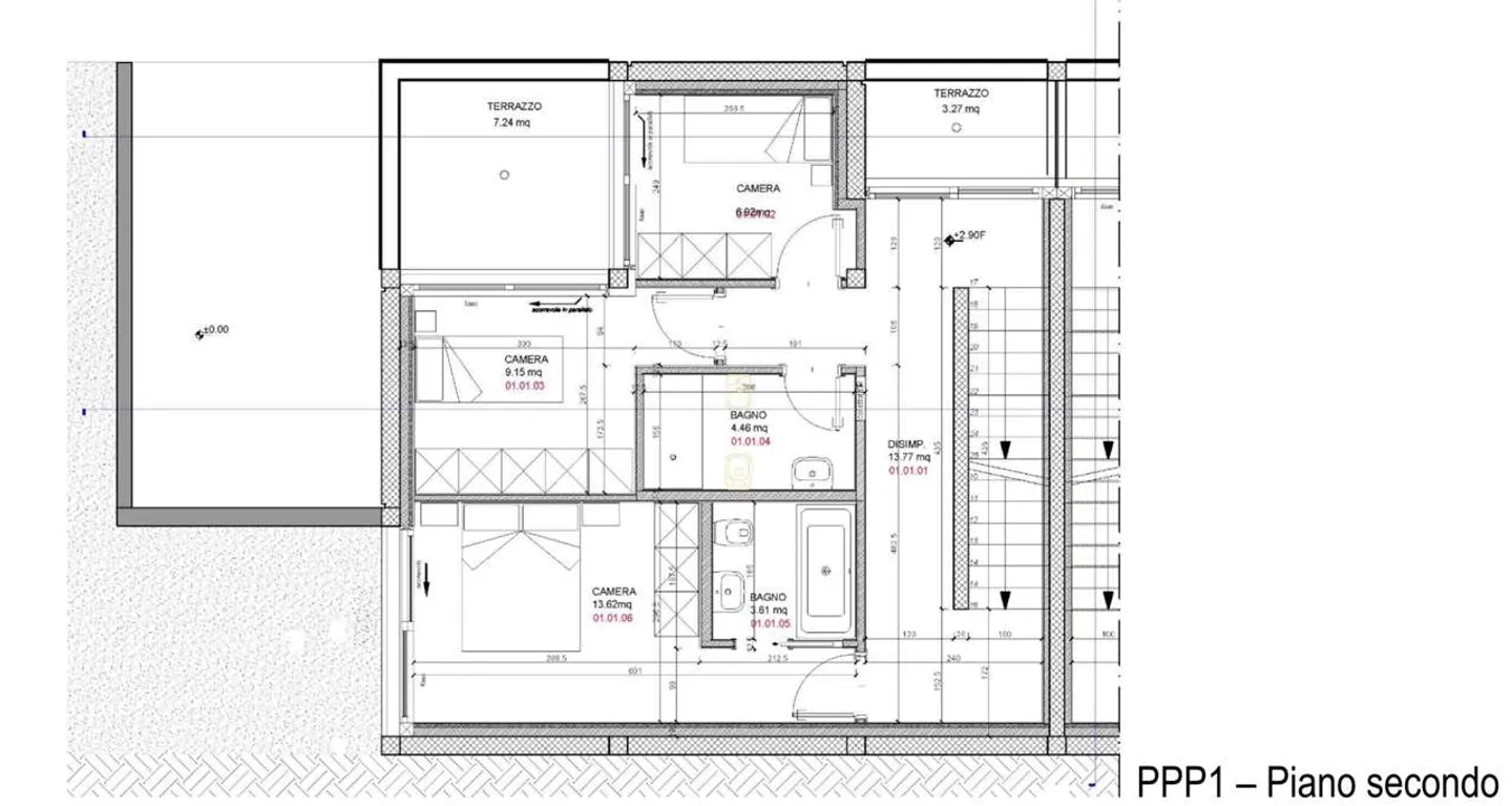
La casa di 160 m² di superficie abitabile è distribuita su 3 livelli e collegata da una scala interna. È composta da:
- Al piano terra con un posto auto, un garage doppio, l'ingresso e una sala tecnica/lavanderia;
- Al piano superiore con 2 camere da le...
Dettagli immobile
- Disponibile dal
- Su accordo
- Stanze
- 6
- Anno di costruzione
- 2017
- Superficie abitabile
- 160 m²
- Superficie terreno
- 50 m²



